219

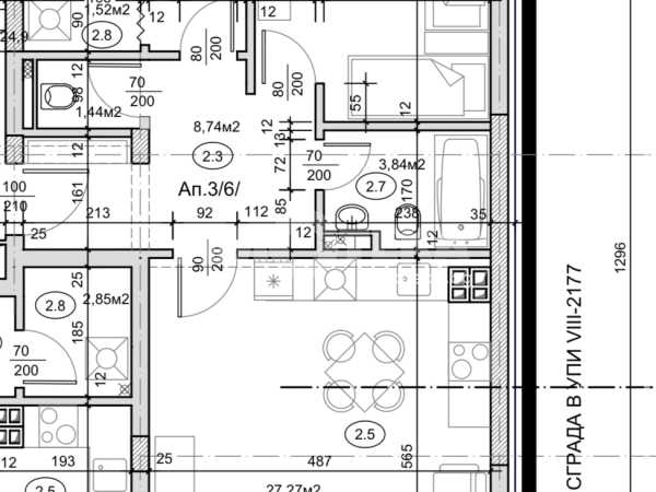
Тристаен апартамент за продажба, София, ID 677460

110 кв.м.
Малинова Долина
Шпакловка и замазка
239 500 EUR
2 177 €/кв.м.

Тристаен апартамент  НАЙ-ДОБРАТА ЛОКАЦИЯ В МАЛИНОВА ! Сграда на 6 етажа на комуникативно място с бърз достъп до НСА,  бул. Симеоновско Шосе и Околовръстен път. В близост се намира 290та детска градина Отлична възможност както за инвестиция, така и за лично ползване.

Малинова долина е един от най-бързо развиващите се квартали на София.  Точно до бъдещата метростанция и с готова инфрастуктура свързваща сградата с ключови пътни артерии.Сградата се намира се в централната част на квартала. 

Висококачествено строителство от инвеститор с множество реализирани проекти! Перфектна функционалност на апартаментите!  

Обади се СЕГА и цитирай този код 677460.


Оферта от партньор на Имотека

Христиан Иванов
Консултант недвижими имоти
pin Пиши във Viber

Оферти от същата сграда

За квартал Малинова долина, София и недвижимите имоти

Малинова долина е южен квартал на София с динамично развиваща се жилищна среда, съчетаващ организирани жилищни зони и бърз достъп до градските централни части. Районът се намира непосредствено до Студентски град, на запад от Младост 4 и близо до Околовръстен път, което осигурява удобна връзка с останалата част на столицата. Кварталът се обслужва от автобусни линии 102, 111, 69, 70, Х9 и електробус E123, което осигурява бързо придвижване до центъра, търговски и офис райони. Планирано е продължение на метролиния до Студентски град, чийто маршрут ще преминава през Малинова долина, като допълва съществуващите транспортни възможности.


Строителният профил на квартала включва комбинация от традиционни еднофамилни къщи и модерни жилищни комплекси, което създава балансирана и организирана градска среда. В източната част на квартала се изграждат нискоетажни жилищни сгради до четири етажа с озеленени дворове и контрол на достъпа, предлагайки функционална и сигурна среда за живеене. Новият градоустройствен план предвижда подобрени строителни характеристики, с повече зелени площи и внимателно планирано улично пространство между сградите.


Образователната инфраструктура също се развива, като в района вече функционира Общинска детска градина № 190. Допълнително има няколко частни детски заведения с разнообразни образователни програми. Въпреки че в Малинова долина все още няма училища, близостта до Студентски град и Младост 4 осигурява лесен достъп до учебни заведения и извънкласни занимания.


Малинова долина привлича както жилищни купувачи, търсещи удобна локация, зелени площи и модерни комплекси, така и инвеститори, които оценяват активното ново строителство и съотношението между цена и качество, правейки квартала перспективен за инвестиционни покупки.

На сайта на Имотека може да откриете обяви за разнообразни имоти с функционално разпределение в Малинова долина, които отговарят на различни бюджети и предпочитания. 

Ето и бързи връзки до типове имоти в продажба в квартал Малинова долина:

>>  едностайни апартаменти в Малинова долина, София
>>  двустайни апартаменти в Малинова долина, София
>>  тристайни апартаменти в Малинова долина, София
>>  многостайни апартаменти в Малинова долина, София
 

Нашите брокери недвижими имоти ще ви посрещнат с професионализъм и добро отношение. Професионалната помощ е от голямо значение, тъй като ние сме наясно с пазара. 
Тук може да се запознаете и с местоположението на офисите на ИМОТЕКА в София.

 

Често задавани въпроси

Коя е най-подходящата локация за търсене на къщи за продажба?

Как да изберем брокер при продажба на апартамент?

Колко струва една оценка на имот?

Какво представлява данъчната оценка?

Какви са прогнозите за кварталите през 2025г.?