257

Тристаен апартамент за продажба, София, ID 668787

113 кв.м.
Манастирски ливади - изток
Шпакловка и замазка
322 000 EUR
2 850 €/кв.м.

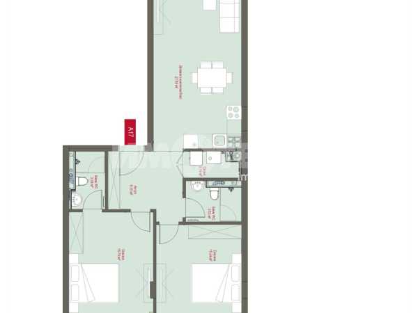
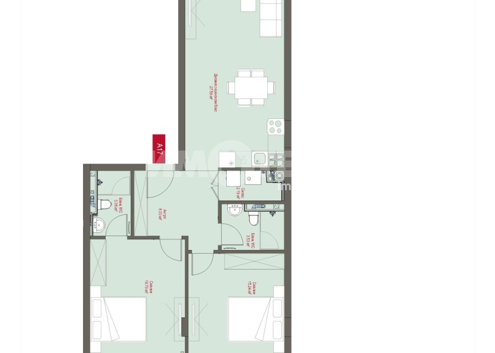
Сграда, която предлага още повече удобства, простор и съвременна визия, съчетани с доказаното качество и внимание към детайла - гаранция за качество от утвърден инвеститор и строител на множество завършени сгради от най-висок клас. Начален етап на строителство - 09/2025. Времетраене - 30 месеца. Тристаен апартамент разположен на пети етаж. Изложение Юг-Север. Застроената площ на жилището е 96 кв.м., разпределени в антре с дрешник, всекидневна с кухненски бокс и излаз към лоджия, от която се разкрива гледка към Витоша планина, две спални - едната със собствена баня с тоалетна, втора баня с тоалетна и склад.

Жилищната сграда се състои от 141 елегантни и функционално проектирани апартамента и 161 гаража и паркоместа.  Проектът е част от дългосрочната визия за развитие на района и подобряване на градската среда с добавена стойност отвъд тухли и квадратни метри.

Манастирски ливади - Изток разполага с добре развита инфраструктура - големи търговски обекти като вериги супермаркети (Billa, Kaufland, Fantastico, Lidl), Bulgaria Mall, здравни и образователни услуги, зелени пространства и отлична свързаност с градски транспорт. Допълнителна добавена стойност на района дава и изграждането на линейния парк по поречието на Боянска бара, което ще облагороди зоната в една съвременна, зелена и устойчива градска среда.

Местоположение Съвременна архитектурна визия Функционално разпределение на пространствата Минимален дял общи части за максимално ефективна жилищна площ В сградата ще бъдат използвани първокласни материали и иновативни технологии Схеми на плащане в зависимост от начина на финансиране и етапа на строителство  

Обади се СЕГА и цитирай този код 668787.

Александър Чамурджиев
Консултант недвижими имоти
pin Пиши във Viber

Оферти от същата сграда

За квартал Манастирски ливади, София и недвижимите имоти

Манастирски ливади е динамично развиващ се квартал в южната част на София, разположен непосредствено до природен парк Витоша. Районът предлага съвременна градска среда, разнообразни удобства за живеене и удобен достъп до центъра на града, подпомаган от добре развита мрежа на обществения транспорт.

Границите на квартала включват бул. „България“ на запад, ул. „Тодор Каблешков“ на север, кв. Кръстова вада на изток и Околовръстен път на юг. Бул. „България“ осигурява директна връзка с централните части на София, а районът се обслужва от автобусни линии 64, 76, 204 и 304, трамвайни линии 7 и 27, тролейбуси 7 и 8, както и електробусни линии E73 и E74. От 2023 г. функционира и система за електрически автобуси по заявка, интегрирана в градския транспортна мрежа.

Жилищното строителство в квартала е активно и включва нискоетажни комплекси с модерна архитектура, подземни паркинги и поддържани общи пространства. Манастирски ливади привлича предимно млади професионалисти и семейства, като същевременно е и инвестиционно интересен заради баланса между цена и качество на имотите.

За подобряване на зелените площи е разработен идеен проект за изграждане на линеен парк в източната част на квартала, предвиждащ пешеходни и велосипедни маршрути, зони за спорт и отдих, което ще допринесе за по-функционална и устойчива градска среда.

Манастирски ливади предлага разнообразна удобства за своите жители и гости. Тук се намира Bulgaria Mall, супермаркети, пазар „Борово“, фитнес и уелнес центрове, медицински услуги, салони за красота и развлекателни зони. Районът разполага и с модерни бизнес сгради като Bellissimo и Astra, което го прави привлекателен както за живеене, така и за работа.

На сайта на Имотека може да откриете обяви за разнообразни имоти с функционално разпределение в Манастирски ливади, които отговарят на различни бюджети и предпочитания. 

Ето и бързи връзки до всички типове имоти в продажба в квартал Манастирски ливади:

>>   двустайни апартаменти в Манастирски ливади, София
>>   тристайни апартаменти в Манастирски ливади, София
>>   многостайни апартаменти в Манастирски ливади, София
>>   офиси и търговски площи в Манастирски ливади, София
 

Нашите брокери недвижими имоти ще ви посрещнат с професионализъм и добро отношение. Професионалната помощ е от голямо значение, тъй като ние сме наясно с пазара. 

Тук може да се запознаете и с местоположението на офисите на ИМОТЕКА в София.

Често задавани въпроси

Как да изберем брокер при продажба на апартамент?

Какво можем да очакваме от пазара на имоти през 2025 г.?

Каква е цената на квадратен метър за София?

Как се прави анализ на пазара на недвижими имоти?

Как протича сделка за покупка на имот с ипотечен кредит?