226

Тристаен апартамент за продажба, София, ID 638711

147 кв.м.
Младост 4
Шпакловка и замазка
345 944 EUR
2 353 €/кв.м.

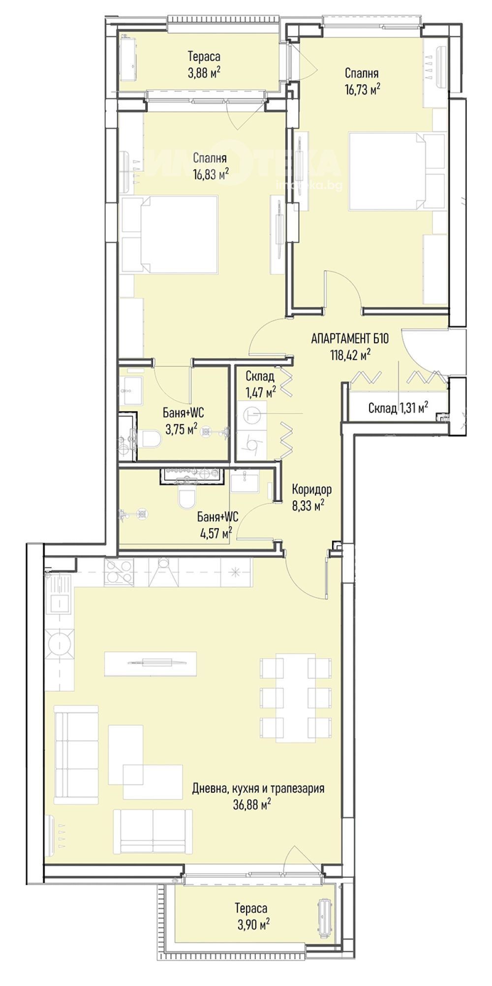
СГРАДАТА Е С АКТ14! Огромен тристаен апартамент на етаж ЧЕТИРИ със ЗП 118.42 м2 и следното разпределение: антре, дневна с кухненски бокс и трапезария- 36,88м2, две спални всяка с площ над 16м2, две бани, склад/мокро и  две тераси. ИзложениеЮ/С. Паркоместа подземни. Съвременна жилищна сграда с изискана фасада и изпълнение на най-високо ниво. Красива визия, проектирани функционални разпределения на апартаментите. Очаквана дата за завършване на комплекса края на 2025 год.

Висококачествено строителство съобразено с най-модерните технологии в бранша, висок клас материали и оборудване от водещи производители в световен мащаб. 

Намира се в кв. "Младост 4", само на крачка от метростанция и магазини "Кауфланд", "Фантастико", "Технополис", "Sport Depot" и "Комо". В непосредствена близост до сградата е Бизнес Парк "София".

Отлична локация. Качество на строителството. Поддръжка.

Обади се СЕГА и цитирай този код 638711.


Оферта от партньор на Имотека

Веска Георгиева
Консултант недвижими имоти
pin Пиши във Viber

Оферти от същата сграда

За квартал Младост, София и недвижимите имоти

Квартал Младост е сред най-големите организирани жилищни райони в източната част на София. Той включва няколко ясно обособени зони – Младост 1, 1А, 2, 3 и 4, и се отличава с планирана градска среда, широки булеварди и добре поддържани зелени пространства.

Едно от основните предимства на района е отличната му транспортна обезпеченост. През Младост преминават ключови пътни артерии като бул. „Цариградско шосе“, бул. „Александър Малинов“, бул. „Андрей Ляпчев“ и бул. „Йерусалим“, които осигуряват удобни връзки с центъра на столицата, Летище София и Околовръстния път. Кварталът се обслужва от редица метростанции по линии М1 и М4 – „Младост 1“, „Младост 3“, „Бизнес парк София“, „Александър Малинов“, „Акад. Ал. Теодоров – Балан“ и „ИЕЦ – Цариградско шосе“, което гарантира бързо и комфортно придвижване с градски транспорт. Освен метрото, районът разполага с множество автобусни линии, сред които №4, 76 и 88, както и тролейбусни линии №3 и 5, осигуряващи връзка с различни части на града.

Жилищният фонд в Младост е разнообразен и предлага широк спектър от възможности. В по-старите зони преобладават панелни и ЕПК сгради, изградени през 70-те и 80-те години, докато в Младост 3, Младост 4 и в района на Бизнес парк София са реализирани множество съвременни жилищни комплекси с модерна визия, подземни паркинги и контролиран достъп. Това разнообразие прави квартала подходящ както за постоянно живеене, така и за инвестиции с цел отдаване под наем.

Образователната инфраструктура в района е добре развита. На територията на Младост се намират множество общински детски градини и училища, сред които 125 СУ „Боян Пенев“, 144 СУ „Народни будители“ и 145 ОУ „Симеон Радев“, както и професионални гимназии и частни образователни центрове, предлагащи разнообразни образователни възможности.

Здравното обслужване в квартала е на високо ниво благодарение на наличието на големи болнични заведения и медицински комплекси. В района и в непосредствена близост са разположени УМБАЛ „Св. Анна“, Acibadem City Clinic – УМБАЛ Младост, УМБАЛ „Софиямед“, както и редица частни клиники, лаборатории и аптеки, осигуряващи бърз и лесен достъп до медицинска помощ.

 

Търговската и обслужваща инфраструктура в Младост е добре развита. Тук се намират големи търговски обекти като The Mall, търговската зона на Business Park Sofia, супермаркети на водещи вериги, офис сгради, банкови институции, както и разнообразие от заведения, фитнеси и спортни съоръжения. Значителните зелени площи, включително парк „Младост“, междублоковите пространства и близостта до Витоша, допринасят за по-добро качество на живот и възможности за отдих и спорт.

Комбинацията от отлична транспортна свързаност, развита инфраструктура, разнообразен жилищен фонд и концентрация на бизнес, услуги и търговия утвърждава квартал Младост като един от най-предпочитаните райони в София както за живеене и работа, така и за инвестиции в недвижими имоти.

На сайта на Имотека може да откриете обяви за разнообразни имоти с функционално разпределение в Младост, които отговарят на различни бюджети и предпочитания. 

Нашите брокери недвижими имоти ще ви посрещнат с професионализъм и добро отношение. Професионалната помощ е от голямо значение, тъй като ние сме наясно с пазара. 

Тук може да се запознаете и с местоположението на офисите на ИМОТЕКА в София.

Често задавани въпроси

Към кого да се обърнем за данъчна оценка на имот?

Как протича сделка за покупка на имот с ипотечен кредит?

Каква е цената на квадратен метър за София?

Как да изберем брокер при продажба на апартамент?

Какво можем да очакваме от пазара на имоти през 2025 г.?