121

Тристаен апартамент за продажба, София, ID 660610

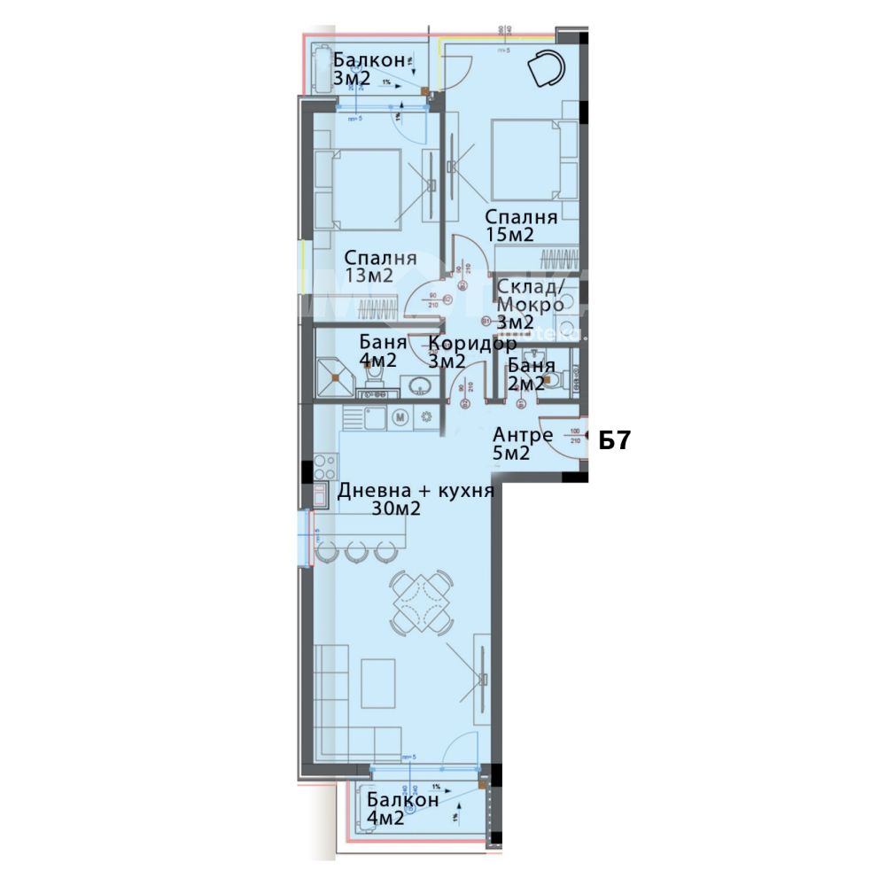
118 кв.м.
Модерно предградие
Шпакловка и замазка
183 164 EUR
1 402 €/кв.м.

4 жилищни входа на 6 етажа с 97 апартамента и магазин, паркоместа и гаражи в сутерена.

Предвидени са покривни тераси и озеленени дворове на някои от жилищата, създавайки комфортна и спокойна атмосфера за обитателите. Отоплението е предвидено на ел.ток, с изводи за радиатори за последващо включване на газ. Изградени вътрешни и външни изводи за климатици.

В близост до основни търговски обекти и транспортни връзки, бул."Сливница", бул."Панчо Владигеров" и метростанция "Сливница".

- Разсрочено плащане - Едни от най-ниските цени в София - Напреднало строителство

Обади се СЕГА и цитирай този код 660610.


Оферта от партньор на Имотека

Иво Жеков
Консултант недвижими имоти
pin Пиши във Viber

Оферти от същата сграда

Често задавани въпроси

Какви са прогнозите за кварталите през 2025г.?

Към кого да се обърнем за данъчна оценка на имот?

Коя цена е определяща при покупка на имот?

Как протича сделка за покупка на имот с ипотечен кредит?

Какво можем да очакваме от пазара на имоти през 2025 г.?