40

Тристаен апартамент за продажба, София, ID 660636

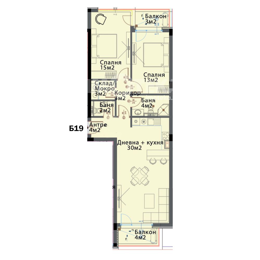
114 кв.м.
Модерно предградие
Шпакловка и замазка
182 464 EUR
1 451 €/кв.м.

4 жилищни входа на 6 етажа с 97 апартамента и магазин, паркоместа и гаражи в сутерена.

Предвидени са покривни тераси и озеленени дворове на някои от жилищата, създавайки комфортна и спокойна атмосфера за обитателите. Отоплението е предвидено на ел.ток, с изводи за радиатори за последващо включване на газ. Изградени вътрешни и външни изводи за климатици.

В близост до основни търговски обекти и транспортни връзки, бул."Сливница", бул."Панчо Владигеров" и метростанция "Сливница".

- Разсрочено плащане - Едни от най-ниските цени в София - Напреднало строителство

Обади се СЕГА и цитирай този код 660636.


Оферта от партньор на Имотека

Иво Жеков
Консултант недвижими имоти
pin Пиши във Viber

Оферти от същата сграда

Често задавани въпроси

Коя цена е определяща при покупка на имот?

Какви са прогнозите за кварталите през 2025г.?

През кои квартали минава метрото в София?

Как да изберем брокер при продажба на апартамент?

Как протича сделка за покупка на имот с ипотечен кредит?