7

Тристаен апартамент за продажба, София, ID 690236

103 кв.м.
Обеля 2
Шпакловка и замазка
174 114 EUR
1 690 €/кв.м.

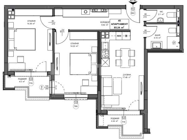
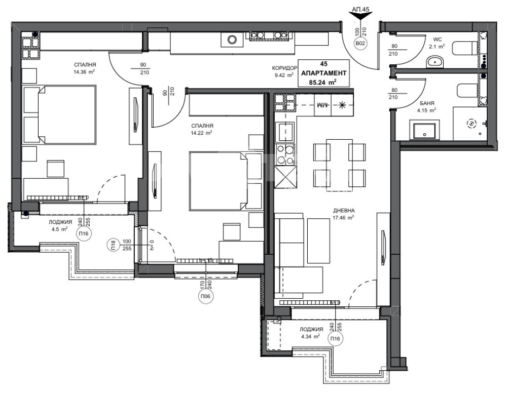
Без комисион от купувача. Гъвкави схеми на плащане. Цените са без ДДС. Тристаен апартамент с РЗП- 102,42м², ЗП-85,24м² с включен склад 45 -2,37 м². Разпределение: коридор, дневна с кухненски бокс и трапезария, две спални, баня с тоалетна, отделна тоалетна, две лоджии. Отопление ТЕЦ. Изложение -ЮГ. Съвременен жилищен комплекс от затворен тип с контролиран достъп, създаден да осигури спокойствие, сигурност и качествен начин на живот. Проектът се отличава с модерна визия, висок клас строителство и добре планирана среда, съчетаваща функционалност и удобство за ежедневието. Отоплението е предвидено на ТЕЦ. Жилищата ще бъдат с висок клас дограма с троен стъклопакет. Общите части са луксозно завършени с гранит,  висок клас асансьор.  Сградата е на 8 етажа с РЗП-5 279 кв.м. върху които са разположени: 47 апартамента, паркоместа и гаражи. Етапи на строителство: АКТ 14 – декември - 2026 г. АКТ 15 – ноември - 2027 г. АКТ 16 – декември- 2027 г. Схеми на плащане: 30% на ПД; 30% на АКТ-14; 30% на АКТ-15; 10% на АКТ-16 20 %на ПД; 80% след АКТ16 Всички обекти в сградата се предлагат БЕЗ КОМИСИОН ОТ КУПУВАЧА на цени на ИНВЕСТИТОРА.

Модерна жилищна сграда с окачена фасада и изпълнена с висококачествени материали, гарантиращи естетика, енергийна ефективност и дълготрайност.

Отлична локация за района, удобен транспорт: Метростанция“Обеля“ на 5 минути. Трамвай №6, Автобуси №30,31,41,26 по бул.“Ломско шосе“.  

Обеля-2 е бързоразвиващ се квартал с добре изградена инфраструктура. В близост до сградата има:  Детски градини: ДГ 82“Джани Родари“; ДГ 5 . Училища: ЧОУ “ Дружба“; ЧПГ “ Дружба“;“ 140СУ “Иван Богоров“ . Медицински услуги: 30-ти ДКЦ, 16-та Стоматологична поликлиника, аптеки. Магазини и услуги: Супермаркет “Т Маркет“, Хипермаркет “БИЛА“ , банки, заведения, бензиностанции и др. Спорт и почивка: Спортен център „Кристал“.

Обади се СЕГА и цитирай този код 690236.


Оферта от партньор на Имотека

Веска Георгиева
Консултант недвижими имоти
pin Пиши във Viber

Оферти от същата сграда

Често задавани въпроси

Колко струва една оценка на имот?

В какъв срок се издава данъчна оценка?

Какво представлява данъчната оценка?

Как се прави анализ на пазара на недвижими имоти?

Каква е цената на квадратен метър за София?