218

Тристаен апартамент за продажба, София, ID 664511

109 кв.м.
Овча купел 2
Шпакловка и замазка
213 180 EUR
1 956 €/кв.м.

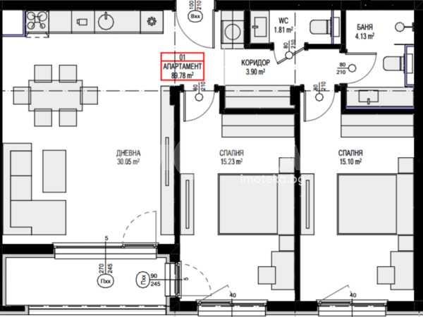
Модерна жилищна сграда в Овча Купел 2, част от мащабен комплекс с обща визия и инфраструктура, от инвеститор с доказано качество на строителство и солидна репутация на пазара. Стилен дизайн и функционални разпределения, разположен в предпочитан район с удобна градска инфраструктура. Просторен тристаен апартамент, с южно изложение, състоящ се от: входно антре, дневна с трапезария и кухненски бокс, две спални, тераса, баня с тоалетна и отделна тоалетна.  

Трети етап на комплекс "South Project". Сграда от 3 входа, на 9 етажа. Богат избор от жилища с една или две спални. Възможност за обединение. Отопление на газ. Към всеки апартамент има прилежащо мазе или склад.  Контролиран достъп, асансьор и висок клас дограма

Сградата се намира на кратко пешеходно разстояние от НБУ и метростанция "Мизия". 

Обади се СЕГА и цитирай този код 664511.


Оферта от партньор на Имотека

Стоян Фотев
Консултант недвижими имоти
pin Пиши във Viber

Оферти от същата сграда

Често задавани въпроси

Как протича сделка за покупка на имот с ипотечен кредит?

Към кого да се обърнем за данъчна оценка на имот?

Как да изберем брокер при продажба на апартамент?

Коя цена е определяща при покупка на имот?

Колко струва една оценка на имот?

За квартал Овча купел, София и недвижимите имоти

Овча купел се намира в югозападната част на София и представлява един от най-големите жилищни райони в столицата. Застрояването на територията започва в началото на XX век, а днес кварталът е административно обособен в две части  „Овча купел 1“ и „Овча купел 2“, които се различават по етапи на изграждане и тип застрояване.

Районът е обслужван от метролиния М3, която включва станции „Овча купел“, „Мизия/НБУ“, „Овча купел II“ и „Горна баня“. Те осигуряват директна връзка с централните квартали и останалата част на града. През квартала преминават множество автобусни линии – 11, 59, 60, 73, 102, 103, 107, 111, 260, както и трамвайни маршрути с номера 4, 5 и 11.

Основните булеварди, „Овча купел“, „Президент Линкълн“, „Монтевидео“ и „Цар Борис III“, заедно с Околовръстния път, осигуряват удобен автомобилен достъп както до централните части на София, така и до периферните зони и изходите на града. 

Застрояването в Овча купел се характеризира с комбинация от по-старо панелно и ЕПК строителство и нови жилищни комплекси с модерна визия и функционално планиране. Новите проекти, разположени в близост до метростанции и основни булеварди, предизвикват висок интерес от купувачи и инвеститори, търсещи добро съотношение между цена, местоположение и удобства.

Кварталът предлага добре изградена градска среда с широк набор от услуги, детски градини, училища, здравни заведения, търговски обекти и заведения за хранене. Сред по-значимите образователни институции са 149 Средно училище „Иван Хаджийски“ и Нов български университет. На територията функционират няколко детски градини, както и здравни структури като МБАЛ „Доверие“, Медицински център „Про Вита“ и Болница за рехабилитация „Сердика“. В района се намират и аптеки, специализирани медицински кабинети и магазини на големи търговски вериги.

Жителите на Овча купел разполагат с достъп до зелени площи и паркови пространства, сред които парк „Овча купел“. Близостта до планина Витоша и до Западен парк създава възможности за активен отдих и спорт на открито.
Благодарение на добрата транспортна свързаност, наличието на разнообразен жилищен фонд и устойчивото развитие на инфраструктурата, Овча купел се утвърждава като един от перспективните жилищни райони на София, подходящ както за живеене, така и за дългосрочни инвестиции.

На сайта на Имотека може да откриете обяви за разнообразни имоти с функционално разпределение в Овча купел, които отговарят на различни бюджети и предпочитания. 

Ето и бързи връзки до всички типове имоти в продажба в квартал Овча купел:

>>   двустайни апартаменти в Овча купел, София
>>   тристайни апартаменти в Овча купел, София
>>   многостайни апартаменти в Овча купел, София
>>   офиси в Овча купел, София
>>   търговски площи в Овча купел, София
 

Нашите брокери недвижими имоти ще ви посрещнат с професионализъм и добро отношение. Професионалната помощ е от голямо значение, тъй като ние сме наясно с пазара. 

Тук може да се запознаете и с местоположението на офисите на ИМОТЕКА в София.