226

Къща/Вила за продажба, София, ID 670927

245 кв.м.
Панчарево
Напълно обзаведен
570 000 EUR
2 327 €/кв.м.

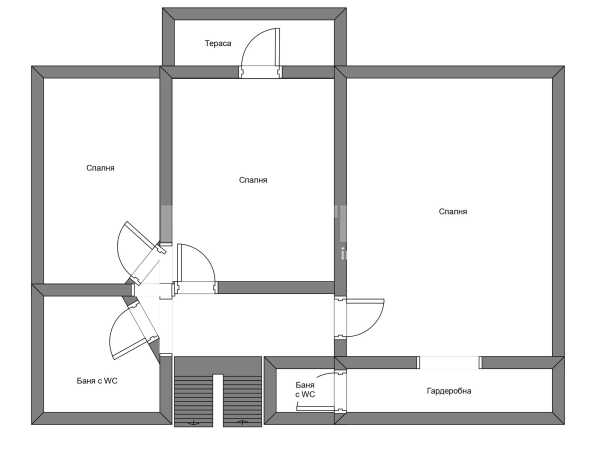
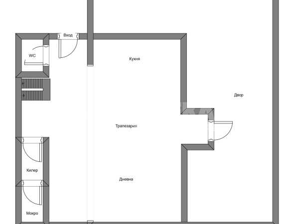
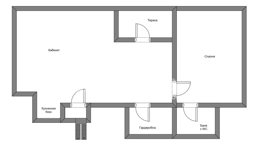
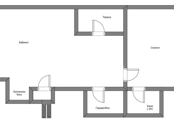
Луксозно обзаведена редова къща, разположена на три етажа и собствен двор в престижния и спокоен район Панчарево. Къщата се състои от: Първи етаж: Дневна с кухненски бокс и трапезария с излаз към прилежащ двор, склад, котелно, тоалетна, антре и вътрешно стълбище Втори етаж: Три спални, две бани с тоалетна, дрешник, балкон, антре и вътрешно стълбище Трети етаж: Дневна с кухненски бокс /към момента кабинет/, спалня, баня, перално помещение, балкон и стълбище.  Към къщата има две надземни паркоместа, на допълнителна цена от 60 000 евро. 

Къщата е част от затворен комплекс с денонощна жива охрана (24/7) гаранция за сигурност и спокойствие на семейството Ви.

КОМПЛЕКС БЯЛА ЧЕРКВА – на 3 минути с кола от Англо-американското училище, 1.8 км (4 минути с кола) от новоизградения пътен възел Самоковско шосе Околовръстен път, 5 минути до Панчаревското езеро

Затворен комплекс с жива охрана Собствен двор пространство за почивка и забавления Функционално разпределение на три етажа Тиха и зелена среда с бърз достъп до града Този дом е идеален избор за семейства, които търсят сигурност, удобство и близост до природата, без да правят компромис с връзката си до града.

Обади се СЕГА и цитирай този код 670927.


Оферта от партньор на Имотека

Галина Димова
Консултант недвижими имоти
pin Пиши във Viber

Сходни оферти

Често задавани въпроси

Колко струва една оценка на имот?

Каква е цената на квадратен метър за София?

През кои квартали минава метрото в София?

Как протича сделка за покупка на имот с ипотечен кредит?

Към кого да се обърнем за данъчна оценка на имот?