250

Къща/Вила за продажба, София, ID 670930

221 кв.м.
Панчарево
Напълно обзаведен
455 000 EUR
2 059 €/кв.м.

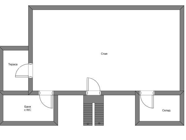
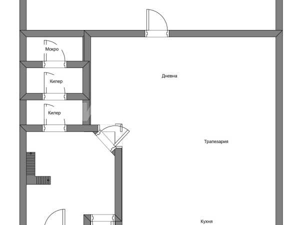
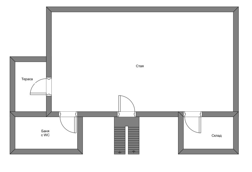
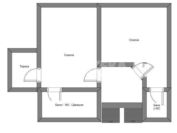
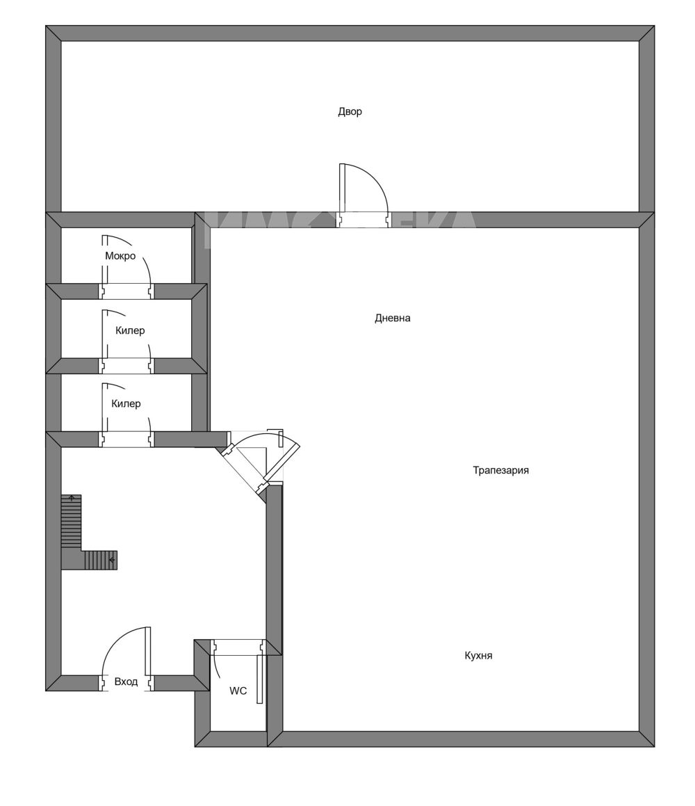
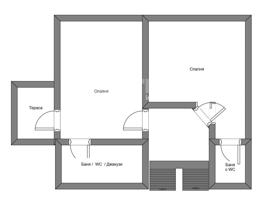
Луксозно обзаведена редова къща, разположена на три етажа и собствен двор в престижния и спокоен район Панчарево. Къщата се състои от: Първи етаж: Дневна с кухненски бокс и трапезария с излаз към прилежащ двор, склад, котелно, тоалетна, антре и вътрешно стълбище Втори етаж: Две спални, две бани с тоалетна, балкон, антре и вътрешно стълбище Трети етаж: Дневна с кухненски бокс, склад, баня, балкон и стълбище.  Към къщата има две надземни паркоместа, на допълнителна цена от 60 000 евро. 

Къщата е част от затворен комплекс с денонощна жива охрана (24/7) гаранция за сигурност и спокойствие на семейството Ви.

КОМПЛЕКС БЯЛА ЧЕРКВА – на 3 минути с кола от Англо-американското училище, 1.8 км (4 минути с кола) от новоизградения пътен възел Самоковско шосе Околовръстен път, 5 минути до Панчаревското езеро

Затворен комплекс с жива охрана Собствен двор пространство за почивка и забавления Функционално разпределение на три етажа Тиха и зелена среда с бърз достъп до града Този дом е идеален избор за семейства, които търсят сигурност, удобство и близост до природата, без да правят компромис с връзката си до града.  

Обади се СЕГА и цитирай този код 670930.


Оферта от партньор на Имотека

Галина Димова
Консултант недвижими имоти
pin Пиши във Viber

Сходни оферти

Често задавани въпроси

Какво можем да очакваме от пазара на имоти през 2025 г.?

Какво представлява данъчната оценка?

Как протича сделка за покупка на имот с ипотечен кредит?

През кои квартали минава метрото в София?

Към кого да се обърнем за данъчна оценка на имот?