344

Едностаен апартамент за продажба, София, ID 658374

62 кв.м.
Суха река
Шпакловка и замазка
117 100 EUR
1 889 €/кв.м.

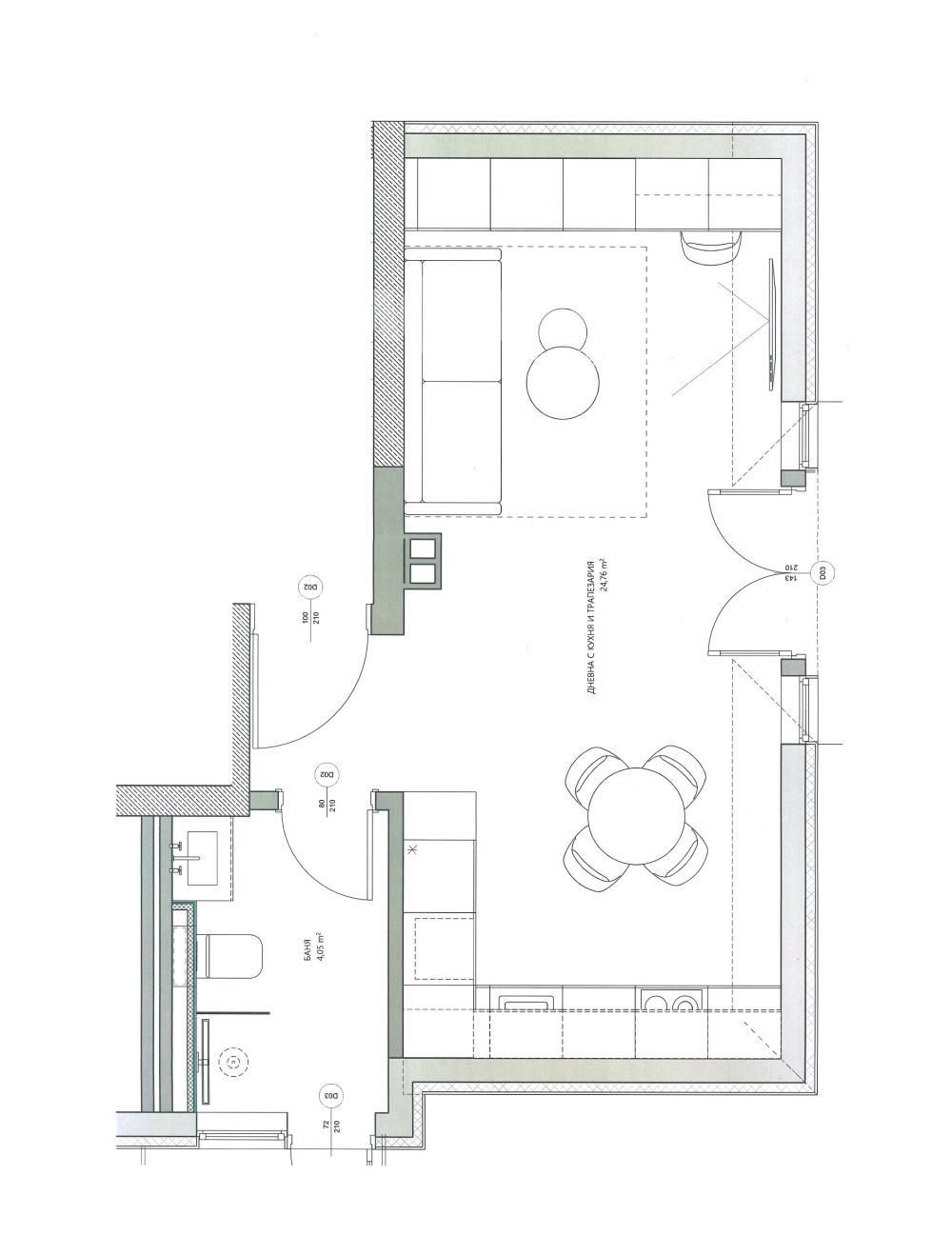
Едностайно жилище състоящо се от: антре, дневна с кухненски бокс, баня с тоалетна и тераса.  Има възможност за закупуване на паркомясто.

Малка бутикова сграда пред Акт 14. Конструктивната система на сградата е масивна, монолитна, скелетно –гредова, в определени участъци скелетно-безгредова , с носещи стомано бетонни. колони и диафрагми. Фундира се на обща фундаментна плоча. Външните и вътрешни ограждащи зидове са съответно 25 и 12,5 сантиметрови блокове. Фасадните плътни части са със завършек от цветна мазилка, покриваща топлоизолационната система, положена върху зидарията от блокове. Прозоречните отвори по фасадите са решени с петкамерна PVC догрма със стъклопакет с ниска и висока емисия на стъклото (К-стъкло и 4 сезона). Парапетните системи по фасадата са със стоманобетонова конструкция в комбинация с алуминиеви профили.

Намира се в кв. Суха река,  в тих район с развита инфраструктура с удобни транспортни връзки до централни части на града. В близост до магазини, училища, детски градини и спирки на градския транспорт.  

Без комисион от купувача! Район с добре изградена инфраструктура, апартаментите в сградата са  подходящи  както за живеене, така и за инвестиция.

Обади се СЕГА и цитирай този код 658374.


Оферта от партньор на Имотека

Десислава Петрова
Консултант недвижими имоти
pin Пиши във Viber

Сходни оферти

За квартал Суха река, София и недвижимите имоти

Квартал Суха река се намира в североизточната част на София и е утвърден жилищен район с дългогодишно развитие. Той граничи с кварталите Хаджи Димитър, Подуяне, Левски, Гео Милев и Орландовци.

Транспортната свързаност на района е добра и се осигурява от основни пътни артерии като бул. „Ботевградско шосе“, бул. „Владимир Вазов“, ул. „Витиня“ и ул. „Александър Екзарх“, които предоставят достъп до центъра на града, източните квартали и основните изходи от София. Общественият транспорт включва автобусни линии №78, 79, 90, 100 и 120, както и тролейбусни линии №1 и 2, осигуряващи връзки с централната градска част, ж.к. „Левски“, ж.к. „Младост“ и северните райони. В относителна близост се намират и метростанции по линия М3, което допълнително улеснява придвижването.

Жилищната среда в Суха река е разнообразна и включва панелни блокове, изградени през 60-те и 70-те години, тухлени кооперации и по-нови сгради с ограничена етажност. В отделни части на квартала са запазени и еднофамилни къщи. През последните години се наблюдава постепенно обновяване на жилищния фонд чрез саниране на съществуващи сгради и реализация на нови жилищни проекти, което поддържа устойчив интерес към района.

Образователната инфраструктура в квартала е добре развита. На неговата територия функционират няколко общински детски градини и училища, сред които 49 ОУ „Бенито Хуарес“ и 44 СУ „Неофит Бозвели“, а в съседните райони Подуяне и Гео Милев са разположени и гимназии и учебни центрове.

Здравното обслужване в Суха река и околните зони е добре организирано. В близост се намират УМБАЛ „Царица Йоанна – ИСУЛ“, ДКЦ-18, Медицински център „Хризантема“, както и редица лаборатории и аптеки, разположени по основните булеварди и във вътрешнокварталните части.

Търговската и обслужваща инфраструктура включва супермаркети, квартални магазини, пазари, аптеки и заведения за хранене. В непосредствена близост са разположени и по-големи търговски обекти и бизнес зони по бул. „Ботевградско шосе“, както и удобен достъп до търговски центрове в районите Подуяне и Младост.

Значително предимство на района е наличието на зелени пространства като парк „Гео Милев“, парк „Герена“ и крайречните зони по поречието на Перловска река.

Комбинацията от утвърдена жилищна среда, добра транспортна обезпеченост и развита инфраструктура утвърждава квартал Суха река като стабилен и предпочитан район за покупка на жилище както за лично ползване, така и за дългосрочни инвестиции.


На сайта на Имотека може да откриете обяви за разнообразни имоти с функционално разпределение в Суха река, които отговарят на различни бюджети и предпочитания. 

Нашите брокери недвижими имоти ще ви посрещнат с професионализъм и добро отношение. Професионалната помощ е от голямо значение, тъй като ние сме наясно с пазара. 

Тук може да се запознаете и с местоположението на офисите на ИМОТЕКА в София.

Често задавани въпроси

Колко струва една оценка на имот?

Какви са прогнозите за кварталите през 2025г.?

Как се прави анализ на пазара на недвижими имоти?

Каква е цената на квадратен метър за София?

Как протича сделка за покупка на имот с ипотечен кредит?