195

Многостаен за продажба, София, ID 676867

240 кв.м.
Център
Напълно обзаведен
По запитване

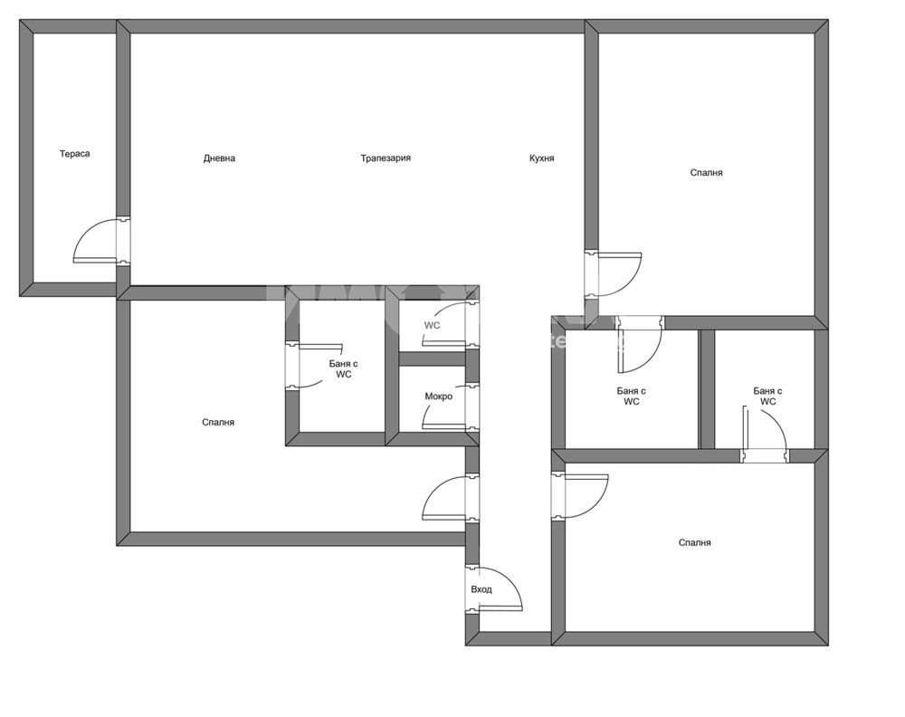
Страхотен многостаен апартамент за продажба в жилищната част на Милениум център. Жилището е разположено на ет. 19 от общо 24 и е с площ по нотариален акт 240 кв.м (в т.ч 2,53% идеални части от общите части на сградата равняващи се на 34 кв.м и 0,171% идеални части от правото на строеж).  Имотът се отличава с три просторни спални, всяка от които е със собствена баня, хол с панорамна тераса, която предоставя изумителна гледка към Витоша и града.  Проектирано и обзаведено по индивидуален дизайнерски проект, жилището задава нови стандарти със своята модерна и луксозна визия и превъзходна локация. В продажната цена влизат също така две подземни паркоместа!   

Емблематичен комплекс, състоящ се от три различни по вид и предназначение сгради - хотелска, жилищна и офисна. 

В Милениум център, разположен до НДК и Южен парк, на бул. Витоша и бул. България.

Голяма площ; Отлична локация и панорамна тераса; Луксозно и чисто ново обзавеждане!       

Обади се СЕГА и цитирай този код 676867.


Оферта от партньор на Имотека

Димитър Йорданов
Консултант недвижими имоти
pin Пиши във Viber

Сходни оферти

За квартал Център, София и недвижимите имоти

Центърът на София е историческото и административно ядро на столицата, изградено върху основите на римския град Сердика. Районът обхваща територията между булевардите „Васил Левски“, „Мария Луиза“, „Патриарх Евтимий“, „Сливница“ и „Христо Ботев“ и съчетава архитектурно наследство с модерна градска инфраструктура.

Транспортната мрежа в квартала е добре развита и включва три линии на метрото, с метростанции „Сердика“, „НДК“, „Софийски университет“, „Опълченска“ и „Лъвов мост“. Районът се обслужва от множество автобусни, тролейбусни и трамвайни линии, което осигурява лесен достъп до всички части на града. Основните булеварди и добре организираното пътно движение правят придвижването удобно както за живущите, така и за работещите в района.

 

Жилищният фонд е разнообразен, от реновирани кооперации с историческа стойност, до новопостроени сгради с подсигурени удобства. Това предоставя широк избор за различни профили купувачи, включително млади семейства, професионалисти и инвеститори.

 

В квартала се намират държавни и частни училища, детски градини, както и водещи висши учебни заведения като Софийски университет „Св. Климент Охридски“, УАСГ, Националната художествена академия и Музикалната академия. Медицинските услуги са достъпни чрез държавни и частни болници, поликлиники и аптеки, сред които МБАЛ „Св. Екатерина“ , Първа градска болница и УМБАЛ „Александровска“ и УМБАЛ „Александровска“, която се намира в непосредствена близост.

 

Търговската и развлекателна инфраструктура включва магазини от големи вериги, супермаркети, бутици, пазари и ресторанти. Квартал Център е и културното средище на София. Тук се намират Националният театър „Иван Вазов“, Националната художествена галерия, катедралата „Св. Александър Невски“, както и множество театри, концертни зали и галерии.

 

Районът предлага достъп до зелени площи като Градската градина, Докторската градина, парковете „Заимов“ и „Борисова градина“, които осигуряват възможности за отдих и спорт в натоварената градска среда.
Комбинацията от централна локация, добре развита инфраструктура, културно-историческа стойност и удобства за ежедневен живот превръщат квартал Център в един от най-търсените райони на София за покупка на имот, подходящ както за дългосрочно живеене, така и за инвестиционни цели.
На сайта на Имотека може да откриете обяви за разнообразни имоти с функционално разпределение в Център, които отговарят на различни бюджети и предпочитания. 

Ето и бързи връзки до всички типове имоти в продажба в Център, София:

>>  едностайни апартаменти в Център, София
>>  двустайни апартаменти в Център, София
>>  тристайни апартаменти в Център, София
>>  многостайни апартаменти в Център, София
>>  офиси в Център, София
>>  търговски площи в Център, София

 

Нашите брокери недвижими имоти ще ви посрещнат с професионализъм и добро отношение. Професионалната помощ е от голямо значение, тъй като ние сме наясно с пазара. 

Тук може да се запознаете и с местоположението на офисите на ИМОТЕКА в София.

Често задавани въпроси

Колко струва една оценка на имот?

Към кого да се обърнем за данъчна оценка на имот?

В какъв срок се издава данъчна оценка?

Какво можем да очакваме от пазара на имоти през 2025 г.?

Как се прави анализ на пазара на недвижими имоти?