192

Двустаен апартамент за продажба, Варна, ID 672830

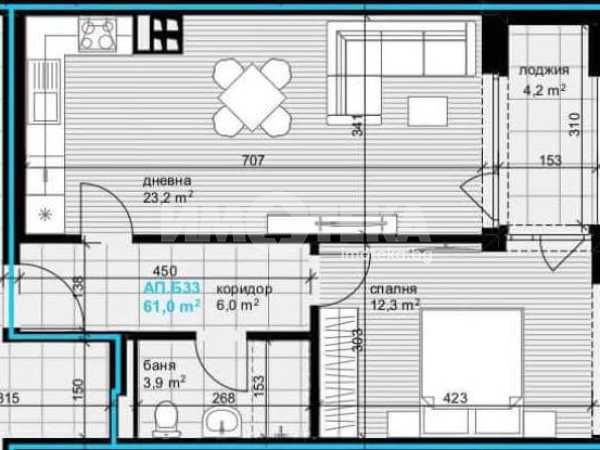
71 кв.м.
Аспарухово
Шпакловка и замазка
135 000 EUR
1 901 €/кв.м.

Прекрасен двустаен апартамент, състоящ се от дневна 23,2 кв.м.,  спалня  12,3 кв.м. , баня, килер и  тераса.

Сграда с Акт 14! За изграждането на комплекса ще бъдат използвани висококачествени материали, а строителството ще бъде изпълнено от доказана във времето строителна фирма. Ще бъде използвана високоефективна топлоизолационна система, висококачествена силиконова мазилка, устойчива на атмосферни влияния, водоотблъскваща, с висока паропропускливост. Дограма – 7-камерна, троен стъклопакет  с две специални стъкла (четири сезона + бяло + К стъкло) с газ аргон. Стъклени и метални парапети.

Местоположението на комплекса осигурява редица удобства: простор, зелени площи, прекрасна морска панорама, слънчево изложение, чист въздух, отлична пътна инфраструктура, близост до автобусна спирка на градски транспорт и хипермаркет LIDL, близост до плаж с бърз и удобен пешеходен достъп.  Тишина, спокойствие - всичко,  осигуряващо  здравословна среда на живот.

Поддръжка  от професионален домоуправител   Зеленина, простор, чист въздух!

Обади се СЕГА и цитирай този код 672830.


Оферта от партньор на Имотека

Тодорка Шарбанова
Консултант недвижими имоти
pin Пиши във Viber

Сходни оферти

Често задавани въпроси

Как да изберем брокер при продажба на апартамент?

Какво представлява данъчната оценка?

Коя цена е определяща при покупка на имот?

Как протича сделка за покупка на имот с ипотечен кредит?

Към кого да се обърнем за данъчна оценка на имот?