7

Тристаен апартамент за продажба, Варна, ID 686791

123 кв.м.
Аспарухово
Шпакловка и замазка
220 608 EUR
1 794 €/кв.м.

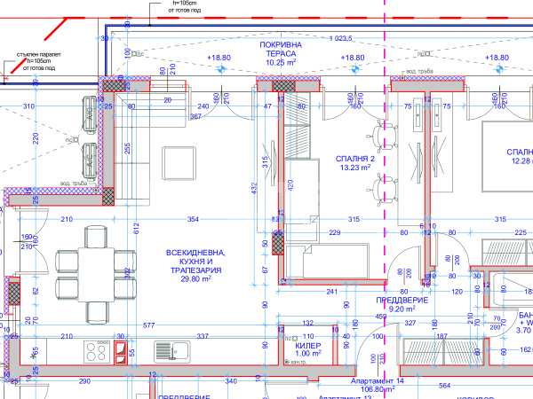
НОВО! Стартираме продажбата на нов жилищен проект в центъра на кв.Аспарухово. Луксозно строителство, разсрочено плащане. Разгледайте тук проекта за тристаен апартамент, с отлични параметри!

Нова сграда, с голям партерен магазин. Подземни паркоместа

В центъра на кв.Аспарухово

Разсрочено плащане, отлична локация!

Обади се СЕГА и цитирай този код 686791.


Оферта от партньор на Имотека

Красимира Милчева
Консултант недвижими имоти
pin Пиши във Viber

Оферти от същата сграда

За квартал Аспарухово, Варна и недвижимите имоти

Квартал Аспарухово се намира в южната част на Варна и представлява ясно обособена градска зона с развита жилищна и обществена инфраструктура. Районът е отделен от централната част на града чрез Аспаруховия мост, граничи с местностите Галата и Боровец и разполага с директен излаз към Варненския залив.

 

Връзката на кваратала с останалите части на Варна се осъществява основно чрез Аспаруховия мост, който е ключова транспортна артерия към центъра и северните квартали на града. Общественият транспорт е добре организиран и включва автобусни линии №10, 12, 17, 55 и 88, осигуряващи редовни връзки с централната градска зона и останалите райони.

Жилищната среда в квартала е разнообразна. Тук се срещат панелни жилищни блокове, изградени през 70-те и 80-те години, тухлени кооперации, както и еднофамилни къщи. През последните години се отчита повишен интерес към ново строителство, включително по-малки жилищни сгради и комплекси с модерна визия, особено в районите с морска панорама.

 

Образователната инфраструктура в Аспарухово е добре развита. На територията на квартала функционират основни и средни училища като ОУ „Христо Ботев“ и СУ „Любен Каравелов“, както и няколко общински детски градини и ясли.

 

Здравното обслужване в района е осигурено чрез ДКЦ Аспарухово, медицински центрове, специализирани кабинети и аптеки, разположени по основните улици и жилищни зони. В рамките на кратко пътуване са достъпни и големите болнични заведения на Варна, сред които МБАЛ „Св. Анна“, УМБАЛ „Св. Марина“, ДКЦ 1 „Света Клементина“ и други.

 

Търговската и обслужваща инфраструктура в квартала е добре представена чрез супермаркети, квартални магазини, аптеки, банки и заведения. Налични са и спортни съоръжения, фитнес зали и различни обществени услуги, които покриват ежедневните потребности на жителите.

 

Едно от основните предимства на квартала е Аспаруховият парк – един от най-големите паркове във Варна, предлагащ отлични условия за разходки, спорт и отдих. Допълнително предимство е наличието на плажна и крайбрежна зона, което значително повишава привлекателността на района и качеството на живот.

 

Комбинацията от самостоятелно оформена градска структура, добра транспортна достъпност, разнообразен жилищен фонд и пряк достъп до морска и зелена среда утвърждава квартал Аспарухово като стабилен и предпочитан район както за постоянно живеене, така и за инвестиции в жилищни имоти във Варна.
 

На сайта на Имотека може да откриете обяви за разнообразни имоти с функционално разпределение в квартал Аспарухово на Варна, които отговарят на различни бюджети и предпочитания. 

Нашите брокери недвижими имоти ще ви посрещнат с професионализъм и добро отношение. Професионалната помощ е от голямо значение, тъй като ние сме наясно с пазара. 

Тук може да се запознаете и с местоположението на офисите на ИМОТЕКА във Варна.

 

Популярни търсения за имоти ново строителство във Варна:

>>   Двустайни апартаменти ново строителство
>>   Тристайни апартаменти ново строителство
>>   Едностайни апартаменти ново строителство
>>   Многостайни апартаменти ново строителство
>>   Къщи ново строителство

Често задавани въпроси

Към кого да се обърнем за данъчна оценка на имот?

Коя цена е определяща при покупка на имот?

Какво представлява данъчната оценка?

Какво можем да очакваме от пазара на имоти през 2025 г.?

Как да изберем брокер при продажба на апартамент?