59

Двустаен апартамент за продажба, Варна, ID 664189

74 кв.м.
Кайсиева градина
Шпакловка и замазка
77 360 EUR
1 216 €/кв.м.

Нова сграда на 6 етажа в кв. "Владислав Варненчик", м-т "Планова". Предвидено Разрешение за строеж в края на 2025 г.

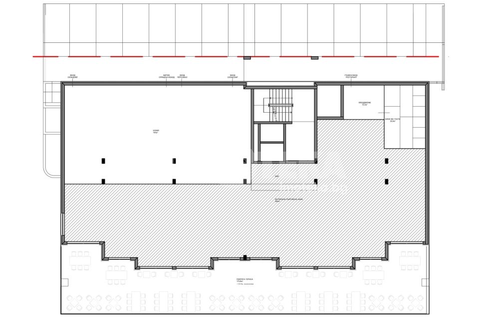
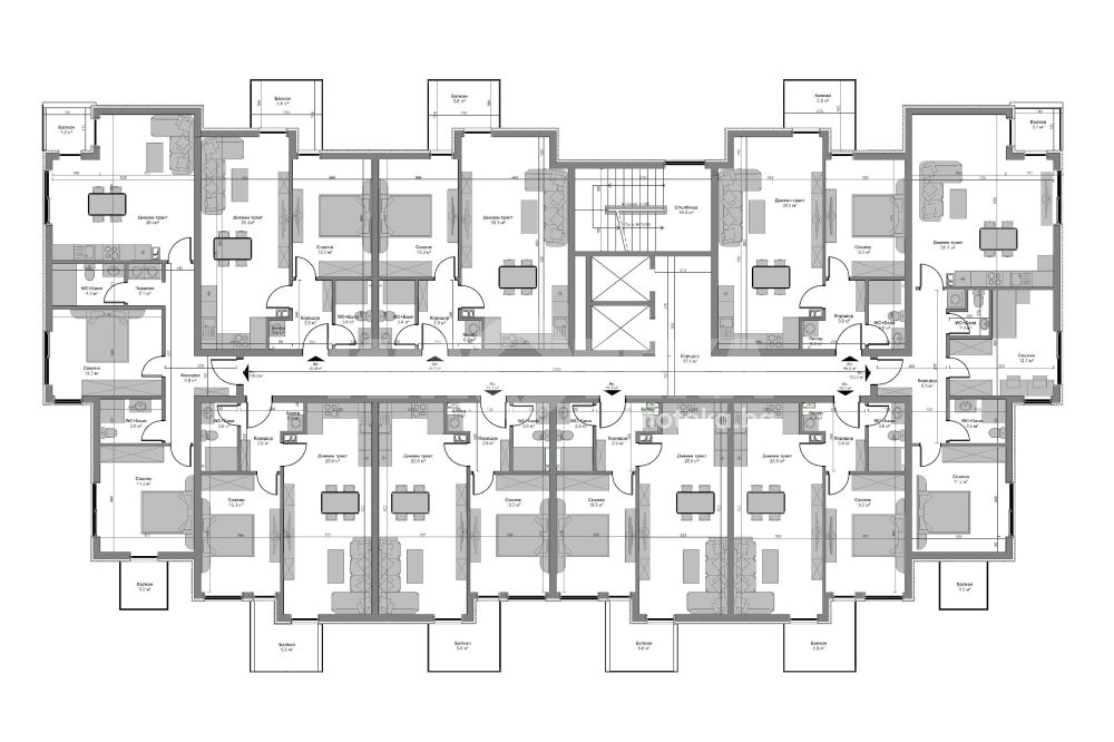
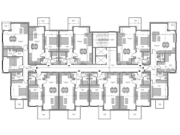
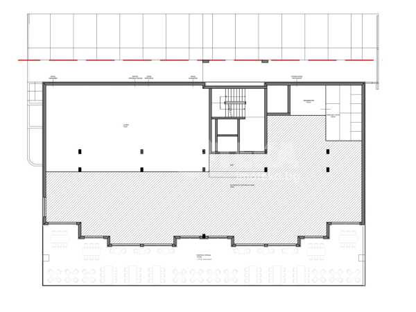
Сградата ще бъде със стилна и модерна визия, без отстъпи и скосове. На първи етаж е проектиран голям ресторант над 506 кв.м + тераса 173 кв.м, със собствени външни паркоместа за посетители. Той също се предлага за продажба. Жилищата започват от втори етаж и са идентични по вертикалата нагоре. Сградата разполага с две нива подземен паринг.

Сградата се намира в ж.к. "Кайсиева Градина", в карето между бул."Цар Освободител" и бул. "Трети март". Непосредствено близо е до автобусна спирка, на 5 минути пеш има училище и детска градина, а за 15 мин се стига до магазин "МЕТРО".

Основните преимущества са красивата гледка към Варненското езеро, утвърденото качество на строителни и довършителни работи.

Обади се СЕГА и цитирай този код 664189.


Оферта от партньор на Имотека

Любомира Карова
Консултант недвижими имоти
pin Пиши във Viber

Оферти от същата сграда

Често задавани въпроси

Към кого да се обърнем за данъчна оценка на имот?

Какво можем да очакваме от пазара на имоти през 2025 г.?

Коя цена е определяща при покупка на имот?

Как да изберем брокер при продажба на апартамент?

Как протича сделка за покупка на имот с ипотечен кредит?