77

Магазин за продажба, Варна, ID 664208

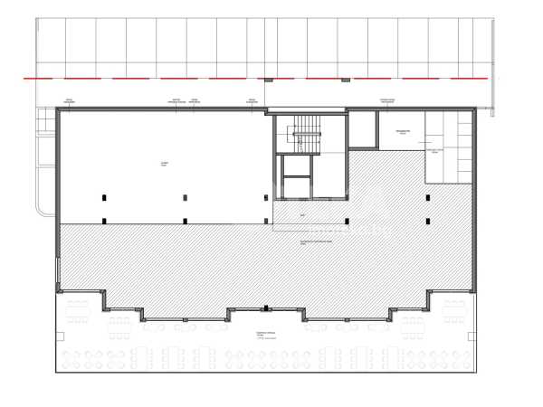
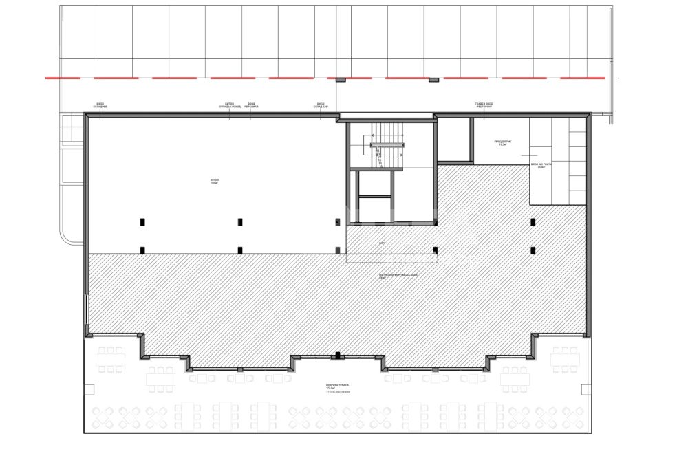
745 кв.м.
Кайсиева градина
Шпакловка и замазка
1 000 000 EUR
1 342 €/кв.м.

Нова сграда на 6 етажа в кв. "Владислав Варненчик", м-т "Планова". Предвидено Разрешение за строеж в края на 2025 г.

Сградата ще бъде със стилна и модерна визия, без отстъпи и скосове. Жилищата започват от втори етаж и са идентични по вертикалата нагоре. Сградата разполага с две нива подземен паринг.

Сградата се намира в ж.к. "Кайсиева Градина", в карето между бул."Цар Освободител" и бул. "Трети март". Непосредствено близо е до автобусна спирка, на 5 минути пеш има училище и детска градина, а за 15 мин се стига до магазин "МЕТРО".

Основните преимущества са красивата гледка към Варненското езеро, утвърденото качество на строителни и довършителни работи.

Обади се СЕГА и цитирай този код 664208.


Оферта от партньор на Имотека

Любомира Карова
Консултант недвижими имоти
pin Пиши във Viber

Оферти от същата сграда

Често задавани въпроси

Към кого да се обърнем за данъчна оценка на имот?

Коя цена е определяща при покупка на имот?

Как да изберем брокер при продажба на апартамент?

Какво можем да очакваме от пазара на имоти през 2025 г.?

Колко струва една оценка на имот?