19

Тристаен апартамент за продажба, Варна, ID 690790

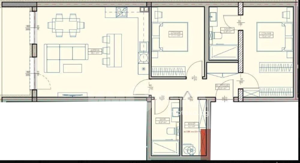
98 кв.м.
Кайсиева градина
Шпакловка и замазка
139 000 EUR
1 418 €/кв.м.

Сградата предлага разнообразни по площ и изложение апартаменти, които осигуряват максимална естествена светлина, удобство и комфорт за обитателите. Проектът е реализиран с висококачествени, устойчиви във времето материали, които гарантират сигурност, енергийна ефективност и дългосрочна стойност на инвестицията.

 Сградата разполага със 111 апартамента – добре балансиран микс от двустайни, тристайни и по-просторни многостайни жилища. Разпределенията са проектирани така, че да осигурят максимално функционални дневни зони с кухненски бокс, комфортни спални, удобни бани и практични килери и преддверия. Част от жилищата са с по-големи площи и възможност за обособяване на допълнителни зони за работа или почивка, което прави сградата подходяща както за млади семейства, така и за купувачи, които търсят по-висок клас градско жилище. Подземният и полуподземният етаж, заедно с откритите паркоместа около сградата, осигуряват над 100 паркоместа – комбинация от вътрешни и външни, така че всеки собственик да има удобен и сигурен достъп до паркиране. Съвременната визия на „Галерия 5“, съчетана с добре организирани общи части, асансьорно обслужване и внимателно подбрани материали, я превръщат в модерен жилищен проект, ориентиран към качество на обитаване, сигурност и дългосрочна стойност на инвестицията.

Комуникативен бързоразвиващ се район. В близост до големи търговки обекти, спирки на градски транспорт, училище и други.

Разнообразие от жилища – добре балансиран избор от двустайни, тристайни и многостайни апартаменти, подходящи за различни нужди. Функционални разпределения – удобни дневни зони, комфортни спални и практични помощни помещения. Възможност за допълнително обособяване – някои жилища позволяват създаване на работни или релакс зони. Подходяща за различни купувачи – както за млади семейства, така и за хора, търсещи по-висок клас жилище. Осигурено паркиране – над 100 паркоместа (вътрешни и външни) за удобство и сигурност. Модерна визия и качествено строителство – съвременен дизайн, добре организирани общи части и подбрани материали. Добра инвестиция – проектът е ориентиран към дългосрочна стойност и качество на живот. Отлична локация

Обади се СЕГА и цитирай този код 690790.


Оферта от партньор на Имотека

Владимир Калчев
Консултант недвижими имоти
pin Пиши във Viber

Оферти от същата сграда

За квартал Кайсиева градина, Варна и недвижимите имоти

Кайсиева градина представлява жилищен район в град Варна, разположен в северната част на града. В непосредствена близост на изток се намира Индустриална зона – Планова, а южно от района е разположен центърът на Варна.


Формиран основно през 80-те години на ХХ век, кварталът се характеризира със сграден фонд, съставен предимно от панелни и тухлени жилищни блокове, предлагащи разнообразие от апартаменти.


Границите на района се оформят от основни пътни артерии като бул. „Трети март“, бул. „Цар Освободител“ и ул. „Асен Разцветников“. Транспортната достъпност е добра и се осигурява чрез редовните линии на градския транспорт – автобуси №14, 41, 118 и 209, както и тролейбусни линии №82 и №88, които свързват квартала с различни части на града.


Образователната мрежа включва детска градина №39 „Приказка“ и Основно училище „Стоян Михайловски“, а в съседните райони на Владиславово се намират и други учебни заведения, сред които ОУ „Св. Патриарх Евтимий“.


Здравното обслужване на жителите се осъществява основно чрез медицински центрове в близките квартали, като ДКЦ 3 – Варна, а при необходимост на територията на Кайсиева градина функционира и Лаборатория „Статус“.


В квартала са налични множество търговски обекти – както малки магазини за хранителни стоки, така и представители на големи търговски вериги. Допълнително се предлагат разнообразни услуги за ежедневието, включително козметични салони, заведения за хранене, бензиностанции, фитнес зала и други.

 

Районът разполага с добре изградена инфраструктура, обширни зелени площи между жилищните сгради и детски площадки, което го прави подходящ за семейства с деца.
Съчетанието от развита градска среда, удобен транспорт, зелени пространства и разнообразни услуги утвърждава Кайсиева градина като предпочитано място за живеене както за млади професионалисти, така и за семейства.

На сайта на Имотека може да откриете обяви за разнообразни имоти с функционално разпределение в квартал Кайсиева градина на Варна, които отговарят на различни бюджети и предпочитания. 

Нашите брокери недвижими имоти ще ви посрещнат с професионализъм и добро отношение. Професионалната помощ е от голямо значение, тъй като ние сме наясно с пазара. 

Тук може да се запознаете и с местоположението на офисите на ИМОТЕКА във Варна.

 

Популярни търсения за имоти ново строителство във Варна:

>>   Двустайни апартаменти ново строителство
>>   Тристайни апартаменти ново строителство
>>   Едностайни апартаменти ново строителство
>>   Многостайни апартаменти ново строителство
>>   Къщи ново строителство

Често задавани въпроси

Как протича сделка за покупка на имот с ипотечен кредит?

Какво представлява данъчната оценка?

Към кого да се обърнем за данъчна оценка на имот?

Коя цена е определяща при покупка на имот?

Колко струва една оценка на имот?