124

Тристаен апартамент за продажба, Варна, ID 631294

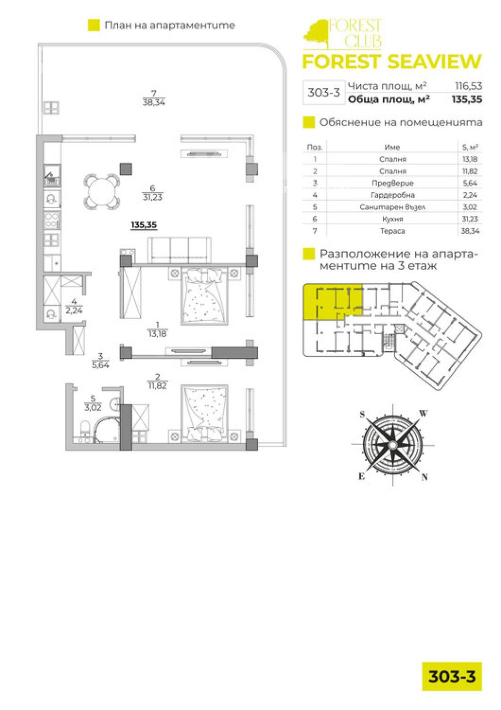
118.03 кв.м.
к.к. Чайка
Шпакловка и замазка
205 368 EUR
1 740 €/кв.м.

Тристаен тухлен апартамент в сграда в строеж. Жилището се състои от просторна дневна с кухненски бокс, две спални, баня с тоалет, килер, входно антре и тераса. Forest SeaView е жилищен комплекс от 5-етажни сгради, разположен на 15 минути от най-добрите плажове на Варна. Апартаментите в комплекса, ще бъдат с морска и горска панорама.

Четирите сгради в комплекса са свързани от двор с отлично озеленяване и места за отдих на открито. На територията на жилищния комплекс е създадено удобно пространство за живот и отдих на жителите и техните гости.

Комплекса се намира на 15 мин. с кола от гр.Варна на територията на парк "Златни пясъци"

- Подземен и наземен паркинг. - Супермаркет. - Салон за красота. - Аптека. - Автомивка. - Зоомагазин. - Бръснарница. - Кафене и детска площадка. - Открит целогодишен отопляем басейн. - Зони за разходка, отдих и релакс. - Денонощно видеонаблюдение.  

Обади се СЕГА и цитирай този код 631294.


Оферта от партньор на Имотека

Кристиян Месчиян
Консултант недвижими имоти
pin Пиши във Viber

Оферти от същата сграда

Често задавани въпроси

Към кого да се обърнем за данъчна оценка на имот?

Какво можем да очакваме от пазара на имоти през 2025 г.?

Как протича сделка за покупка на имот с ипотечен кредит?

Какво представлява данъчната оценка?

Как да изберем брокер при продажба на апартамент?