34

Тристаен апартамент за продажба, Варна, ID 671360

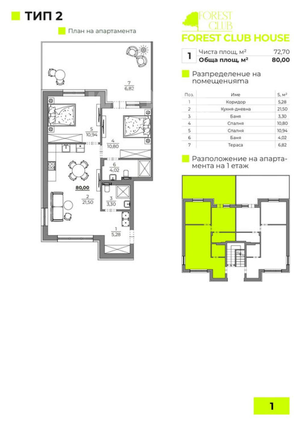
80 кв.м.
к.к. Чайка
Шпакловка и замазка
132 000 EUR
1 650 €/кв.м.

Тристаен апартамент в строеж. Жилището е със следното разпределение: просторна дневна с кухненски бокс, две спални, тераса, две бани с тоалет и входно антре. Степента на завършеност ще е по БДС, като има възможност и за завършване до ключ. Предимство на жилището е, че е един от четирите апартамента в малка двуетажна къща със собствен двор.

Комплексът се състои от двуетажни вили със собствена инфраструктура. Къщите се намират до природен парк, на 15 минути пеша от плажа. Комплексът предлага на своите жители, просторни вътрешни дворове и тераси с невероятна гледка към гората.

Комплекса се намира на 15 мин. с кола от гр.Варна на територията на парк "Златни пясъци"

- Паркинг. - Супермаркет. - Автомивка. - Денонощно видеонаблюдение. - Кафене и детска площадка. - Зони за разходка, отдих и релакс.

Обади се СЕГА и цитирай този код 671360.


Оферта от партньор на Имотека

Кристиян Месчиян
Консултант недвижими имоти
pin Пиши във Viber

Сходни оферти

Често задавани въпроси

Как протича сделка за покупка на имот с ипотечен кредит?

Какво можем да очакваме от пазара на имоти през 2025 г.?

Коя цена е определяща при покупка на имот?

Колко струва една оценка на имот?

Към кого да се обърнем за данъчна оценка на имот?