171

Тристаен апартамент за продажба, Варна, ID 671365

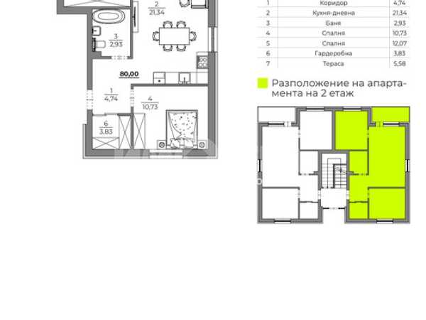
80 кв.м.
к.к. Чайка
Шпакловка и замазка
132 000 EUR
1 650 €/кв.м.

Тристаен апартамент в строеж. Жилището е със следното разпределение: просторна дневна с кухненски бокс, две спални, тераса, баня с тоалет, гардеробна и входно антре. Степента на завършеност ще е по БДС, като има възможност и за завършване до ключ.

Комплексът се състои от двуетажни вили със собствена инфраструктура. Къщите се намират до природен парк, на 15 минути пеша от плажа. Комплексът предлага на своите жители, просторни вътрешни дворове и тераси с невероятна гледка към гората.

Комплекса се намира на 15 мин. с кола от гр.Варна на територията на парк "Златни пясъци"

- Паркинг. - Супермаркет. - Автомивка. - Денонощно видеонаблюдение. - Кафене и детска площадка. - Зони за разходка, отдих и релакс.

Обади се СЕГА и цитирай този код 671365.


Оферта от партньор на Имотека

Кристиян Месчиян
Консултант недвижими имоти
pin Пиши във Viber

Сходни оферти

Често задавани въпроси

Към кого да се обърнем за данъчна оценка на имот?

Как протича сделка за покупка на имот с ипотечен кредит?

Как да изберем брокер при продажба на апартамент?

Коя цена е определяща при покупка на имот?

Какво можем да очакваме от пазара на имоти през 2025 г.?