8

Тристаен апартамент за продажба, Варна, ID 690526

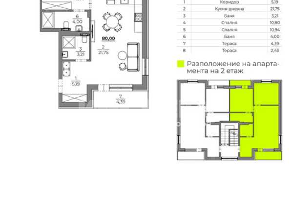
80 кв.м.
к.к. Чайка
Шпакловка и замазка
132 000 EUR
1 650 €/кв.м.

Тристаен апартамент в строеж. Жилището е със следното разпределение: просторна дневна с кухненски бокс, две спални, две тераси, две бани с тоалет и входно антре. Степента на завършеност ще е по БДС, като има възможност и за завършване до ключ.

Комплексът се състои от двуетажни вили със собствена инфраструктура. Къщите се намират до природен парк, на 15 минути пеша от плажа. Комплексът предлага на своите жители, просторни вътрешни дворове и тераси с невероятна гледка към гората.

Комплекса се намира на 15 мин. с кола от гр.Варна на територията на парк "Златни пясъци"

- Паркинг. - Супермаркет. - Автомивка. - Денонощно видеонаблюдение. - Кафене и детска площадка. - Зони за разходка, отдих и релакс.

Обади се СЕГА и цитирай този код 690526.


Оферта от партньор на Имотека

Кристиян Месчиян
Консултант недвижими имоти
pin Пиши във Viber

Сходни оферти

Често задавани въпроси

Какво представлява данъчната оценка?

Как протича сделка за покупка на имот с ипотечен кредит?

Колко струва една оценка на имот?

Към кого да се обърнем за данъчна оценка на имот?

Как да изберем брокер при продажба на апартамент?