224

Тристаен апартамент за продажба, Варна, ID 541363

289 кв.м.
к.к. Слънчев ден
Напълно обзаведен
По запитване

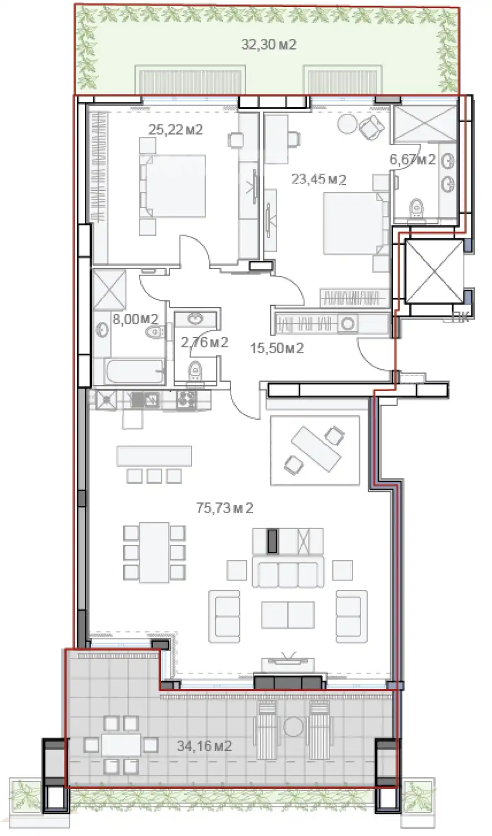
Предлагаме за продажба тристаен апартамент. Жилището се състои от голяма всекидневна с кухненски бокс, две големи спални, две санитарни помещения и панорамна тераса.

За изграждането на сградите са използвани най-новите световни технологии и нововъведения в строителството.

Разположен в североизточната част на град Варна.

- Морска панорама; - Качество; - Напълно завършен апартамент; 

Обади се СЕГА и цитирай този код 541363.


Оферта от партньор на Имотека

Велислава Иванова
Консултант недвижими имоти
pin Пиши във Viber

Оферти от същата сграда

Често задавани въпроси

Как да изберем брокер при продажба на апартамент?

Какво можем да очакваме от пазара на имоти през 2025 г.?

Към кого да се обърнем за данъчна оценка на имот?

Коя цена е определяща при покупка на имот?

Как протича сделка за покупка на имот с ипотечен кредит?