37

Тристаен апартамент за продажба, Варна, ID 671884

68.6 кв.м.
Левски
Частично обзаведен
163 000 EUR
2 376 €/кв.м.

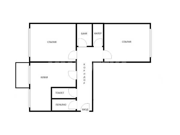
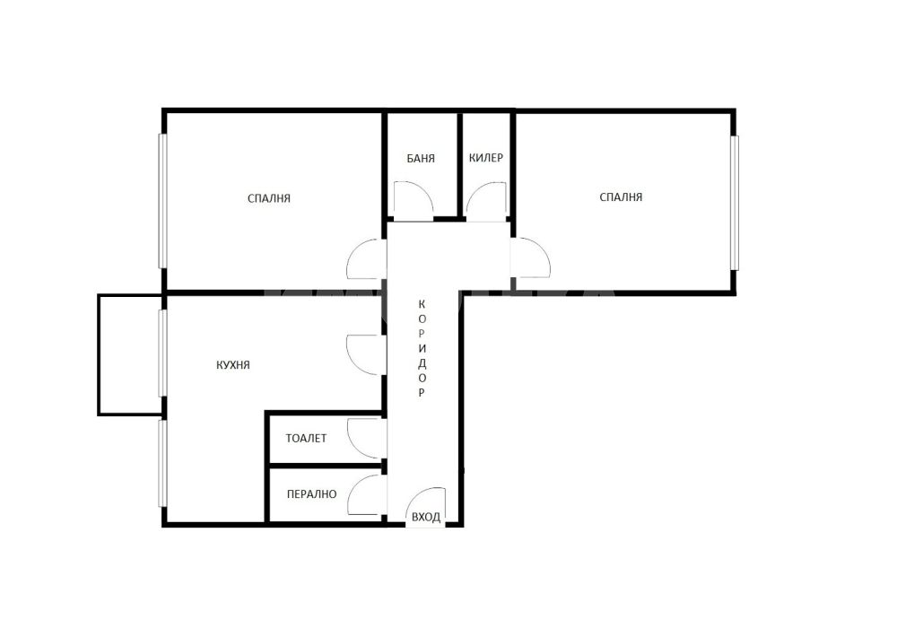
Тристаен апартамент, находящ се в кв. Левски. Жилището се състои от две спални, Г-кухня обособена на дневна и кухненска част с усвоена тераса, входно антре, баня, тоалет, килер и перално помещение. Апартаментът е с външна изолация, намира се на среден етаж и се продава полуобзаведен. Има поставено подово отопление в кухнята, както и на усвоената тераса. Жилището разполага и с избено помещение с площ от 3.72 кв.м.

Сграда с много добре поддържани общи части, сменена дограма по етажите и контрол на достъп. 

Отлична локация, бърз и лесен достъп до главни пътни артерии, административни учреждения, втори корпус на Икономически университет , Технически университет, банки, училища, детски градини, супермаркети, редовен градски транспорт.

Среден етаж! Завършен апартамент! Четири санитарни помещения! Комуникативен район!

Обади се СЕГА и цитирай този код 671884.


Оферта от партньор на Имотека

Кристиян Месчиян
Консултант недвижими имоти
pin Пиши във Viber

Сходни оферти

Често задавани въпроси

Какво представлява данъчната оценка?

Какво можем да очакваме от пазара на имоти през 2025 г.?

Как да изберем брокер при продажба на апартамент?

Към кого да се обърнем за данъчна оценка на имот?

Коя цена е определяща при покупка на имот?