288

Къща/Вила за продажба, Варна, ID 667186

240 кв.м.
м-ст Манастирски рид
Шпакловка и замазка
430 000 EUR
1 792 €/кв.м.

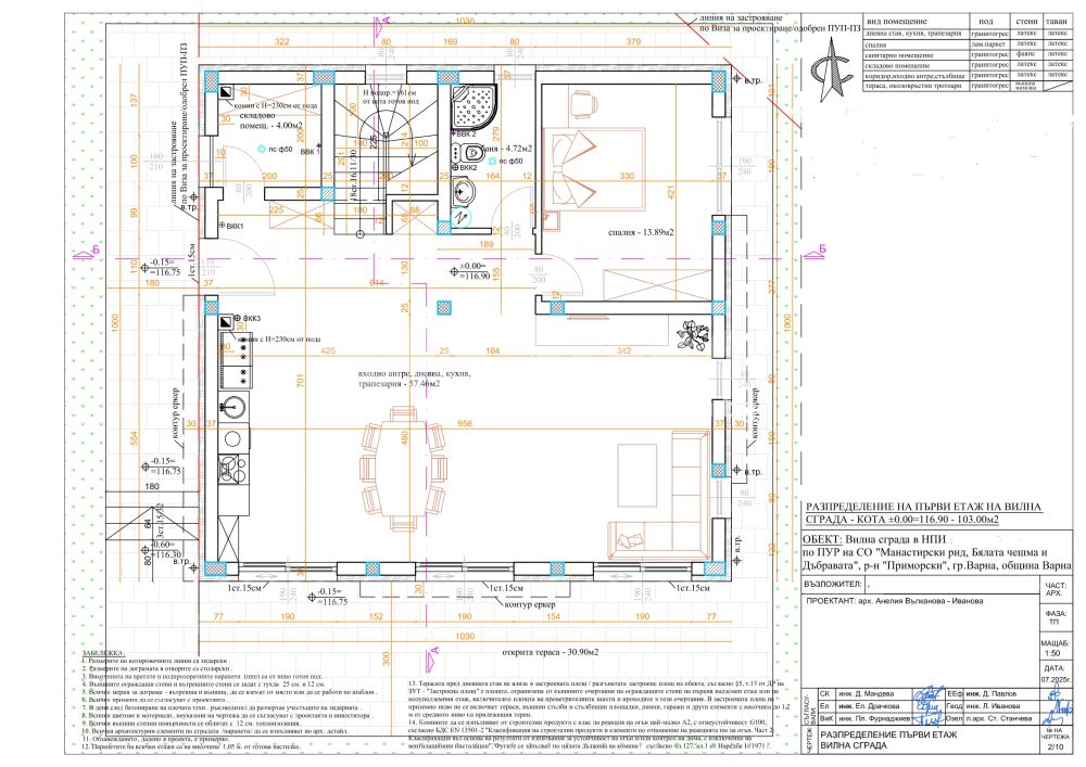
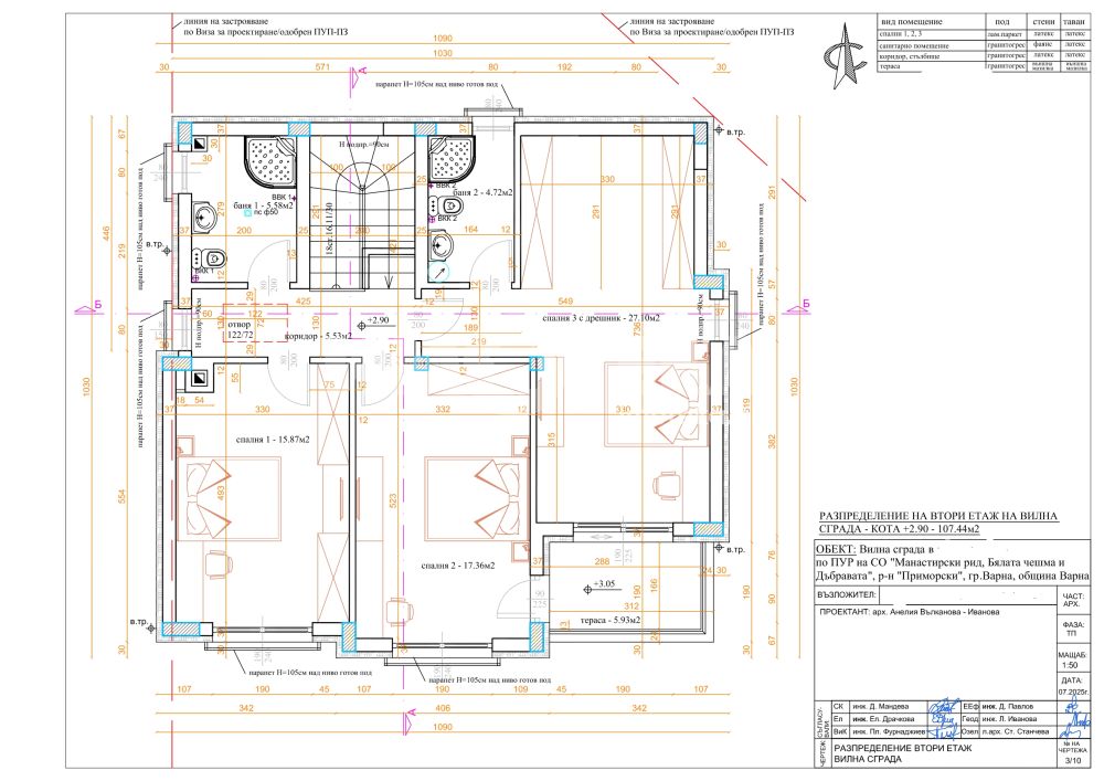
Фамилна Къща с морска панорама в спокоен район на Варна.    Функционална новострояща се къща, с прекрасна морска панорама, разположена в местност "Манастирски рид". Къщата е на два етажа с площ от 210 кв.м и веранда 30 кв.м. Състои се от: Първи етаж: голяма дневна с излаз на веранда, спалня, баня, помощно помещение и вътрешно стълбище. Втори етаж: голяма родителска спалня със собствена баня и излаз на тераса, още две спални с обща баня и тоалет. Пред къщата са оформени места за паркиране. Прилежащият парцел е с площ от 600 кв.м.

Новострояща се тухлена къща СТЕПЕН НА ЗАВЪРШЕНОСТ НА СГРАДАТА – ПО БДС Конструкция и ограждащи елементи Завършена стоманобетонна конструкция съгласно одобрения инвестиционен проект. Външни и вътрешни зидарии, изпълнени с тухлена зидария. Вътрешни стени – измазани с варо-циментова мазилка, подготвени за довършителни работи. Фасади и топлоизолация Част от фасадата е изпълнена с фасадно покритие ламинам – висококачествен керамичен материал, устойчив на атмосферни влияния, UV лъчи и механични въздействия. Топлоизолация с 10 см стъклена вата на фасадите, предвидени за ламинам, с отлични топло- и звукоизолационни свойства и висока паропропускливост. Останалите фасади са изпълнени с 10 см XPS топлоизолация, завършени с минерална декоративна мазилка, цвят и структура по избор на клиента. Пълна система за външна топлоизолация, изпълнена съгласно изискванията за енергийна ефективност. Покрив Покривна конструкция, изпълнена съгласно проекта, 10 см топло- и хидроизолация. Положена битумна хидроизолация (многослойна система), осигуряваща надеждна защита от влага и атмосферни влияния. Електроинсталация Изпълнена цялостна електрическа инсталация по БДС, включваща: Положени кабели, гофрирани тръби и разклонителни кутии; Монтирани електрически табла; Изводи за контакти, ключове и осветление, без монтирани крайни електроуреди. Инсталацията е подготвена за монтаж на осветителни тела и оборудване от клиента. ВиК инсталация Изградена ВиК инсталация до тапа: Студена и топла вода; Канализация; Без монтирани санитарни уреди и смесители. Подове и тавани Подове – изпълнена циментова замазка, подготвена за полагане на крайни настилки. Тавани – подготвени за довършване. Двор и външно пространство Дворното пространство е оформено съгласно проекта, с изпълнени външни стълбища. Теренът е подравнен, подготвен и засят с райграс. Изпълнена ограда по стандарт: Плътна част до 60 см; Над нея – оградна система по избор на клиента (метална, алуминиева, PVC или телена конструкция). Дограма Монтирана PVC дограма REHAU, профил 75 мм; Троен стъклопакет за висока топло- и шумоизолация; Цвят: сив – антрацит; Дограмата отговаря на изискванията за енергийна ефективност по БДС.

Къщата е разположена в спокоен район, далеч от шума на главни булеварди, същевременно бърз достъп до пътя Златни пясъци - Варна.

функционално разпределение с много простор, големи и удобни стаи морска панорама спокоен район далеч от главен път лесен достъп до главния път Златни пясъци - Варна

Обади се СЕГА и цитирай този код 667186.


Оферта от партньор на Имотека

Радослав Николов
Консултант недвижими имоти
pin Пиши във Viber

Сходни оферти

Често задавани въпроси

Какво представлява данъчната оценка?

Какво можем да очакваме от пазара на имоти през 2025 г.?

Как да изберем брокер при продажба на апартамент?

Как протича сделка за покупка на имот с ипотечен кредит?

Към кого да се обърнем за данъчна оценка на имот?