186

Тристаен апартамент за продажба, Варна, ID 674052

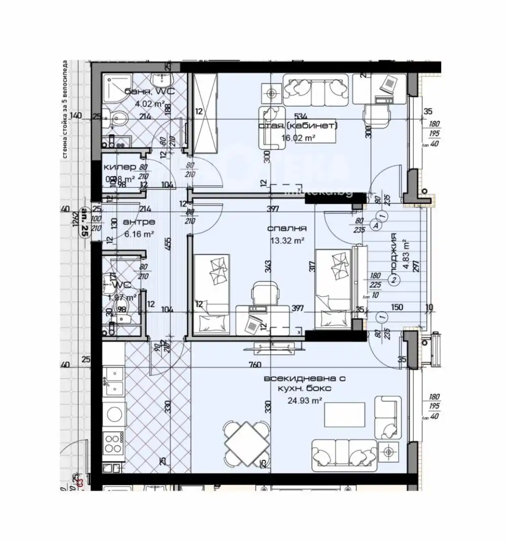
102 кв.м.
Младост 1
Шпакловка и замазка
166 900 EUR
1 636 €/кв.м.

Тристаен апартамент, в нов изключително луксозен жилищен проект, с отлична локация в кв. Младост. Жилището се състои от дневен тракт 25 кв.м, две спални по 16 и 13 кв.м, баня с тоалет, WC, килер, тераса на трите стаи. . Завършен по БДС на шпакловка и замазка, с блиндирана входна врата. Възможност за закупуване на закрито или открито паркомясто или гараж.

На разположение на собствениците на апартаменти ще са: красиво и богато озеленен двор с места за отдих и релакс, както и открит и закрит подземен паркинг. За улесняване бързото придвижване на живущите, във всеки вход са предвидени по три асансьора, общо шест за цялата сграда.

Отлично местоположение с уредена среда и градски транспорт. Квартал Младост е динамично развиващ се квартал, предпочитан, както за живеене, така и за инвестиция. В близост до парк , хипермаркети и супермаркети, детски училища, детски градини, медицински центрове, аптеки и др., са само една малка част от добре развитата инфраструктура и изградена комуникация.

Апартаментите са с разнообразно изложение и функционално разпределение. Стаите са с правилни форми, лесни за обзавеждане. Сградата е обезпечена с достатъчно паркоместа и гаражи, които създават максимален конфорт на живущите. Много зеленина и околоблоково пространство.

Обади се СЕГА и цитирай този код 674052.


Оферта от партньор на Имотека

Борислав Борисов
Консултант недвижими имоти
pin Пиши във Viber

Оферти от същата сграда

За квартал Младост, Варна и недвижимите имоти

Квартал Младаост е един от динамично развиващите се и предпочитани жилищни райони на град Варна, разположен в североизточната част на града. Граничещ с кварталите Възраждане, Владислав Варненчик и част от централната зона, районът предлага удобна връзка както към центъра, както и достъп до морския бряг.

 

Застрояването в Младост се характеризира със съчетание от нискоетажни и средноетажни жилищни сгради, еднофамилни домове и бутикови жилищни комплекси. През последните години Младост е сред най-активните територии по отношение на новото строителство, като проектите се отличават с модерна архитектура, функционално разпределение на жилищните площи и добре поддържани зелени пространства. Това превръща квартала в предпочитан избор за млади семейства, работещи професионалисти и инвеститори, които търсят имоти с високо качество и стабилна дългосрочна стойност.

 

Транспортната инфраструктура в Младост е добре организирана. През квартала преминават множество автобусни линии, осигуряващи достъп до централните части на Варна, както и до други жилищни и делови райони. Основни пътни артерии като бул. „Сливница“, бул. „Трети март“ и бул. „Васил Левски“ осигуряват връзка както с центъра, така и с изходите на града.

 

Младост разполага с богата образователна и социална инфраструктура – държавни училища, сред които ОУ „Антон Страшимиров“, СУ „Неофит Бозвели“ и СУ „Гео Милев“, както и детски градини – ДГ №32 „Моряче“, Детска ясла №13 „Русалка“ и ДГ №25 „Златно зрънце“. В района има множество супермаркети, квартални магазини, аптеки и здравни заведения. Медицинските услуги се осигуряват чрез Медицински център „Младост“, МЦ „Санита“ и редица частни кабинети, като близостта до големите варненски болници допринася за удобството на жителите.

 

Зелените площи и местата за отдих са важен акцент в облика на квартала. Обособените паркове, детски площадки и спортни терени предоставят възможности за активен и здравословен начин на живот. Общинският спортно-развлекателен комплекс „Младост“ предоставя разнообразни възможности за развлечение като включва футболни, волейболни и баскетболни игрища, зимна ледена пързалка, детски кът, велоалея и летен амфитеатър. Това прави района подходящ за семейства с деца, допълвайки предимствата му като комфортна и добре уредена среда за живеене.

Комбинацията от ново строителство, транспортна достъпност, избор от услуги и съоръжения, както и близостта до центъра на Варна, превръщат квартал Младост в един от предпочитаните райони за покупка на жилище, както за лично ползване, така и с цел инвестиция.


На сайта на Имотека може да откриете обяви за разнообразни имоти с функционално разпределение в Младост, които отговарят на различни бюджети и предпочитания. 

Тук може да се запознаете и с местоположението на офисите на ИМОТЕКА във Варна.

Често задавани въпроси

Как протича сделка за покупка на имот с ипотечен кредит?

Коя цена е определяща при покупка на имот?

Как да изберем брокер при продажба на апартамент?

Към кого да се обърнем за данъчна оценка на имот?

Какво можем да очакваме от пазара на имоти през 2025 г.?