88

Тристаен апартамент за продажба, Варна, ID 683974

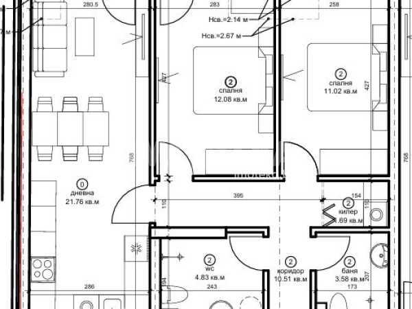
110.4 кв.м.
Окръжна болница
Шпакловка и замазка
277 000 EUR
2 509 €/кв.м.

Нова жилищна сграда в центъра на гр. Варна – Окръжна болница, проектирана с фокус върху функционални разпределения, модерна визия и качество на изпълнение. Проектът е с надземно РЗП 1 265.86 кв.м и съчетава най-търсеното на пазара: централна и комуникативна локация, но в същото време спокойна среда за живеене. Апартаментите ще се предават по БДС, което дава свобода на бъдещите собственици да завършат интериора според вкус, бюджет и стил – подходящо както за лично ползване, така и за инвестиция/отдаване под наем.

Етажност: 6 надземни етажа + 1 подземно ниво (паркинг). Паркиране: подземни паркоместа на ниво -1 и опция за дворно паркомясто.  Функционални жилища: разнообразие от разпределения, с добре организирани дневни зони и логични „мокри“ помещения. Завършени общи части с практични и издръжливи материали: Фасада: топлоизолация и минерални мазилки  Дограма: PVC с троен стъклопакет и енерджи стъкло Подготвена климатизация: положени тръбни пътища за климатици

Сградата се намира в района на Окръжна болница, Стоматологичен факултет, детски градини и училища – район с утвърдена инфраструктура и постоянен интерес. Локацията осигурява бърз достъп до ключови градски точки, търговски обекти и удобства, като едновременно с това позиционирането е на тихо място, което е реално предимство за ежедневен комфорт.

Център + тиха улица – отлична комбинация за живеене и инвестиция Без такса поддръжка – по-нисък месечен разход за собствениците Подземен паркинг + опция за дворно паркомясто  Практични разпределения на помещенията. Тераси и открити пространства, които реално се ползват – плюс към комфорта и стойността на имота. Подходящо за инвестиция: локация и тип имоти с устойчиво търсене (живеене/наем), особено при налично паркиране.

Обади се СЕГА и цитирай този код 683974.


Оферта от партньор на Имотека

Любомира Бояджиева
Консултант недвижими имоти
pin Пиши във Viber

Оферти от същата сграда

Често задавани въпроси

Какво можем да очакваме от пазара на имоти през 2025 г.?

Как да изберем брокер при продажба на апартамент?

Коя цена е определяща при покупка на имот?

Към кого да се обърнем за данъчна оценка на имот?

Как протича сделка за покупка на имот с ипотечен кредит?