111

Двустаен апартамент за продажба, Варна, ID 671050

89.96 кв.м.
XXXXXXXXXX
до ключ
XXX EUR
XXX €/кв.м.

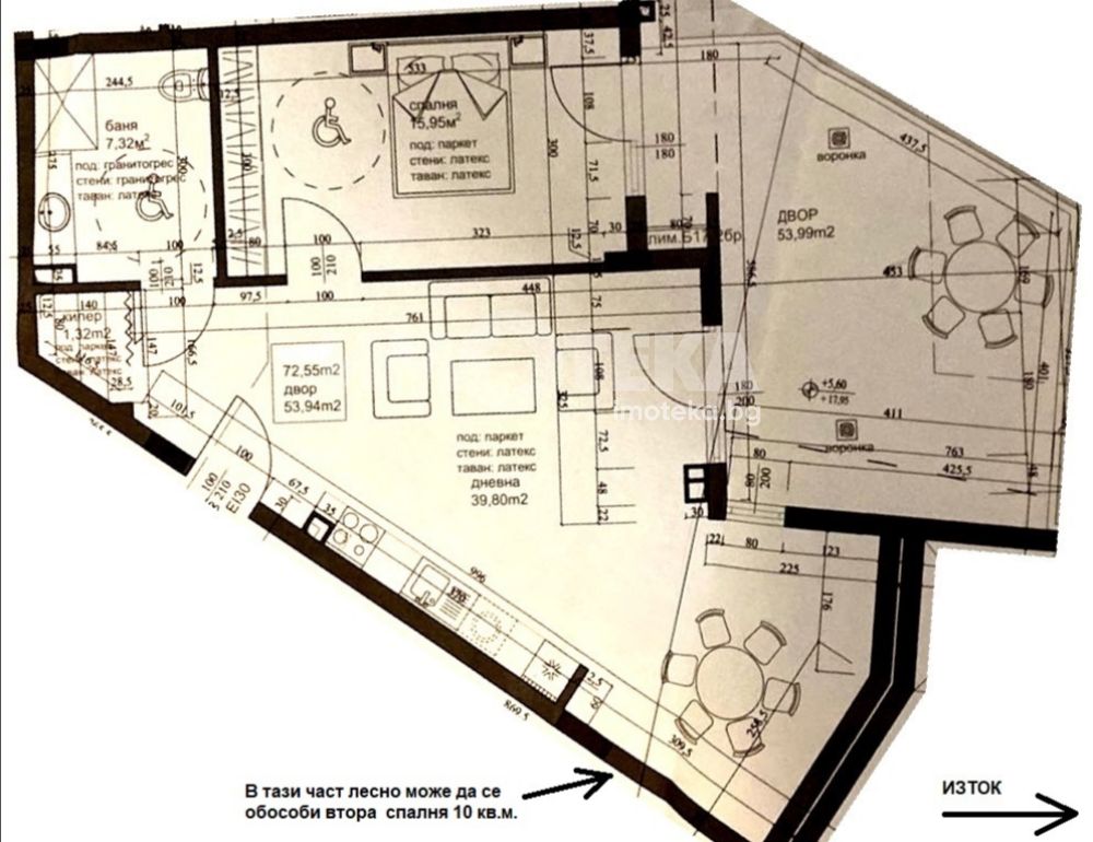
Двустаен тухлен апартамент, преустроен на тристаен в района на Операта. Жилището се състои от просторна дневна с кухненски бокс, две спални, килер, комбиниран санитарен възел и двор с площ от 54 кв.м. Апартаментът се подготвя видно от снимките, да бъде завършен до ключ. Изложението е изцяло на Изток.

Тухлена сграда с акт 16 от януари месец 2023 г. Отлично поддържани общи части, асансьор и контрол на достъп.

В близост до Операта, Ритуална зала, много културни обекти и исторически забележителности. На 10 минути от Морската градина. Удобен транспорт до всички части на града.

До ключ! Светъл и просторен апартамент! Нова сграда с акт 16!

Обади се СЕГА и цитирай този код 671050.


Оферта от партньор на Имотека

Кристиян Месчиян
Консултант недвижими имоти
pin Пиши във Viber

Сходни оферти

Често задавани въпроси

Към кого да се обърнем за данъчна оценка на имот?

Как да изберем брокер при продажба на апартамент?

Коя цена е определяща при покупка на имот?

Колко струва една оценка на имот?

Какво можем да очакваме от пазара на имоти през 2025 г.?