137

Тристаен апартамент за продажба, Варна, ID 676236

61 кв.м.
Цветен квартал
Частично обзаведен
159 000 EUR
2 607 €/кв.м.

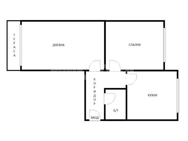
Тристаен апартамент в Цветен квартал, гр. Варна. Имотът е с чиста жилищна площ от 61 кв.м и е разположен на 5-ти етаж от общо 8 в сграда с асансьор. Разпределение: хол с южна тераса, кухня с усвоена тераса, спалня, коридор и баня с тоалет. Жилището е с изолация и подменена дограма, което осигурява по-добра енергийна ефективност и комфорт. Към имота има и прилежащо избено помещение.

Входът на сградата е обновен с нова дограма, а общите части се поддържат в добро състояние.

Районът е отлично развит, предлага удобен транспорт и различни търговски обекти, училища и детски градини.

Подходящ както за живеене, така и за инвестиция с цел отдаване под наем.

Обади се СЕГА и цитирай този код 676236.


Оферта от партньор на Имотека

Мария Куртева
Консултант недвижими имоти
pin Пиши във Viber

Сходни оферти

За Цветен квартал, Варна и недвижимите имоти

Цветният квартал във Варна е разположен в район Приморски. Неговите граници включват квартал Изгрев на север, Левски на изток, Младост на запад, а на юг се намира централната част на града. Името му произлиза от големия брой улици, носещи имена на цветя – ул. Божур, ул. Еделвайс, ул. Кокиче и др.

 

Транспортната свързаност на Цветния квартал с останалите части на Варна е добре развита. Районът се обслужва от редовните автобусни линии 7, 10, 20 и 209, които осигуряват достъп до ключови пътни артерии в града. Близостта до бул. „Христо Смирненски“ и бул. „Васил Левски“ предоставя удобни възможности за придвижване с автомобил към центъра и другите зони на Варна.

 

В квартала са обособени множество образователни институции – сред тях са ОУ „Ангел Кънчев“, Първа езикова гимназия и ДГ №10 „Карамфилче“. На разположение на жителите са също супермаркети, малки квартални магазини, аптеки, здравни кабинети, Дентална клиника Smile Dent, а по-големите медицински центрове като Аджибадем Сити Клиник Медицински Център Варна и УМБАЛ „Св. Марина“ се намират на близко разстояние.

 

Застрояването в района се характеризира основно с панелни и блокови жилища, допълнени от отделни еднофамилни къщи и малки жилищни комплекси. Наличието на разнообразни имоти на пазара прави квартала предпочитан както от хора, които търсят постоянно жилище, така и от инвеститори.

Районът предлага множество открити зелени пространства, детски площадки и спортни съоръжения. В квартала е разположен и стадион „Спартак“, който предоставя възможности за спорт и организиране на различни събития. Близостта до паркови пространства и разнообразните възможности за активен отдих създават комфортна среда за семейства с деца и хора с динамичен начин на живот.

 

Съчетанието от удобна локация близо до центъра, наличието на образователни и здравни услуги, разнообразният избор от жилищни типове и добрата транспортна инфраструктура правят Цветния квартал предпочитано място, както за живеене, така и за дългосрочни инвестиции в имот.
 

На сайта на Имотека може да откриете обяви за разнообразни имоти с функционално разпределение в Цветен квартал, които отговарят на различни бюджети и предпочитания. 

Нашите брокери недвижими имоти ще ви посрещнат с професионализъм и добро отношение. Професионалната помощ е от голямо значение, тъй като ние сме наясно с пазара. 

Тук може да се запознаете и с местоположението на офисите на ИМОТЕКА във Варна.

 

Популярни търсения за имоти ново строителство във Варна:

>>   Двустайни апартаменти ново строителство
>>   Тристайни апартаменти ново строителство
>>   Едностайни апартаменти ново строителство
>>   Многостайни апартаменти ново строителство
>>   Къщи ново строителство

Често задавани въпроси

Как протича сделка за покупка на имот с ипотечен кредит?

Какво можем да очакваме от пазара на имоти през 2025 г.?

Как да изберем брокер при продажба на апартамент?

Коя цена е определяща при покупка на имот?

Към кого да се обърнем за данъчна оценка на имот?