177

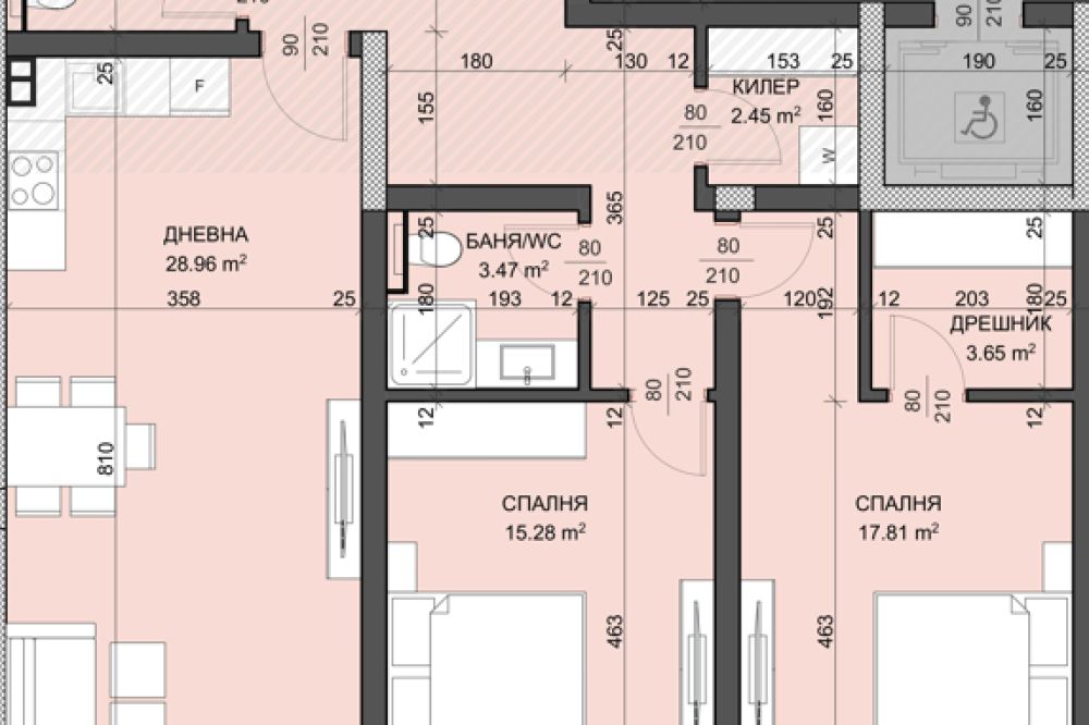
Тристаен апартамент за продажба, Варна, ID 618395

173 кв.м.
XXXXXXXXXX
Шпакловка и замазка
XXX EUR
XXX €/кв.м.

В началото на 2024 година ще стартира строителството на нова луксозна сграда в кв. "Виница". Проектът се състои от три блокчета с по 13 апартамента, подземен паркинг с гаражи и голям брой външни паркоместа. От по-голямата част от апартаментите ще има фронтална морска панорама. 

Висококачествено сторителство, отлично разпределение на жилищата и добър достъп.

кв. "Виница" е на 5 мин. с кола от плажа на Св.Св. "Константин и Елена", бърз достъп до Центъра на град Варна.

Местоположение, качество на сроителството, достъпни цени.

Обади се СЕГА и цитирай този код 618395.

Донко Колев
Консултант недвижими имоти
pin Пиши във Viber

За квартал Виница, Варна и недвижимите имоти

Квартал Виница се намира в североизточната част на Варна, разположен между квартал Бриз и курортния комплекс „Св. Св. Константин и Елена“. Районът се отличава със спокойна и подредена жилищна среда, близост до морето и обширни зелени пространства, което го прави предпочитано място за постоянно живеене извън интензивния ритъм на централната градска зона.

 

Транспортната достъпност на Виница е осигурена основно чрез бул. „Св. Св. Константин и Елена“, който свързва квартала с центъра на Варна. Основна вътрешноквартална артерия е ул. „Цар Борис III“, обслужваща жилищните части и търговските обекти в района. Общественият транспорт включва автобусни линии №29, 31 и 31А, които осигуряват редовни връзки с централната градска част, ЖП гара Варна, Морската градина и курортните зони.

 

Жилищният фонд във Виница е разнообразен и включва еднофамилни къщи, малки жилищни кооперации, както и новопостроени сгради. През последните години в района се реализират съвременни жилищни проекти с модерна архитектура, функционални разпределения и контролиран достъп, което допринася за повишаване на качеството на средата.

 

Образователната инфраструктура в квартала включва детски градини и Основно училище „Панайот Волов“. В съседните райони са разположени средни училища, гимназии и частни образователни центрове, а благодарение на транспортната свързаност е възможен достъп до Икономическия университет – Варна и Медицинския университет – Варна.

 

Здравното обслужване във Виница е добре обезпечено от медицински центрове, общопрактикуващи лекари, стоматологични кабинети и аптеки. В близост се намират и утвърдени лечебни заведения като Медицински център „Евромедика Варна“, Медицински център „Янев“ и МБАЛ „Еврохоспитал“, предлагащи широк спектър от специализирани медицински услуги.

 

Търговската и обслужващата инфраструктура в квартала включва супермаркети, квартални магазини, заведения, фитнес и спортни обекти, както и административни услуги, покриващи ежедневните нужди на жителите. Близостта до курортните комплекси, морския бряг и зелените зони създава допълнителни възможности за отдих и активен начин на живот.

Комбинацията от спокойна жилищна среда, добра транспортна достъпност, модерно ново строителство и близост до морето и курортните зони утвърждава квартал Виница като устойчиво развиващ се и търсен район за живеене и инвестиции в жилищни имоти във Варна.

На сайта на Имотека може да откриете обяви за разнообразни имоти с функционално разпределение в квартал Виница на Варна, които отговарят на различни бюджети и предпочитания. 

Нашите брокери недвижими имоти ще ви посрещнат с професионализъм и добро отношение. Професионалната помощ е от голямо значение, тъй като ние сме наясно с пазара. 

Тук може да се запознаете и с местоположението на офисите на ИМОТЕКА във Варна.

 

Популярни търсения за имоти ново строителство във Варна:

>>   Двустайни апартаменти ново строителство
>>   Тристайни апартаменти ново строителство
>>   Едностайни апартаменти ново строителство
>>   Многостайни апартаменти ново строителство
>>   Къщи ново строителство

Често задавани въпроси

Как да изберем брокер при продажба на апартамент?

Към кого да се обърнем за данъчна оценка на имот?

Как протича сделка за покупка на имот с ипотечен кредит?

Какво представлява данъчната оценка?

Колко струва една оценка на имот?