33

Къща/Вила за продажба, Куманово, ID 668400

173 кв.м.
Шпакловка и замазка
249 990 EUR
1 445 €/кв.м.

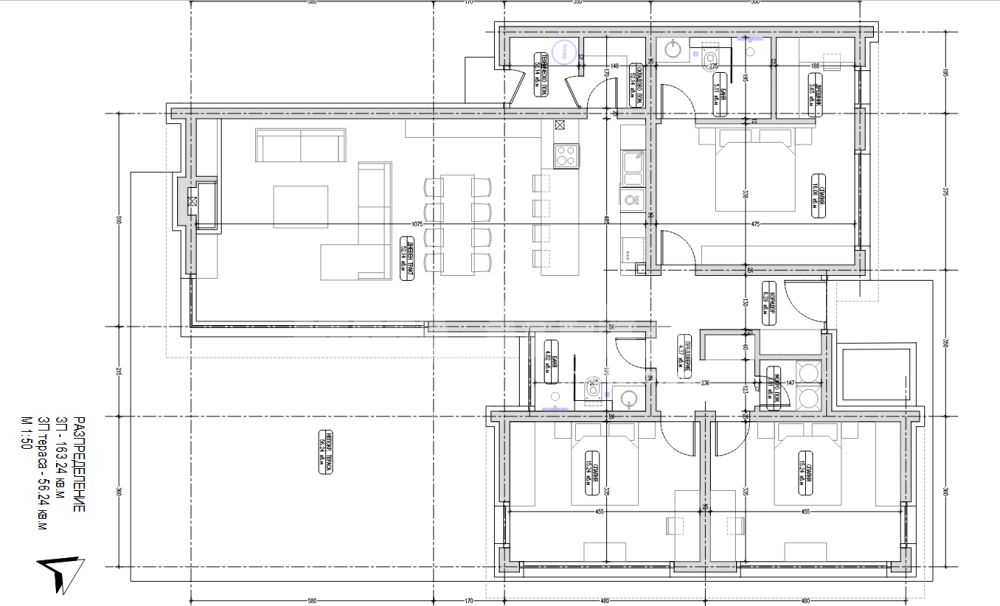
Къща на 10 км от гр. Варна. Вашият семеен дом сред тишина и зеленина – само на 10 км от Варна. Предлагаме ви самостоятелна, едноетажна къща с модерна визия и просторен двор от 811 кв.м – идеално място за отглеждане на деца и пълноценен семеен живот. Къщата се състои от голям дневен тракт, три спални, две бани с тоалетни, отделно мокро помещение, килер и голяма веранда. Със застроена площ от 173 кв.м, домът предлага уют, светлина и възможност за споделени мигове на открито. Строителството ще бъде изпълнено с висок клас материали.

На етап разрешение за строеж. Цената е за за завършване по БДС. Има възможност и завършване до ключ и поставяне на соларни панели, като допълнително се заплаща след уточняване на материалите. Бетонна ограда до 50 см зид, нагоре метални колове с мрежа + зелена мрежа зебло. Интериорни врати, поставяне на плочки, ламинат, шпакловка и боя и необорудвани бани. Входна врата среден клас.

На 10 км от гр. Варна.

Едноетажна къща Модерна архитектура Изключително тих и спокойно място, сред зеленина и простор Висок клас на изпълнение на строителството и завършване Проектирана с югоизточно изложение, къщата ще бъде светла и слънчева през целия ден Районът е изключително тих и зелен – перфектна среда за отглеждане на деца, далеч от градския шум, но близо до всички удобства на Варна

Обади се СЕГА и цитирай този код 668400.


Оферта от партньор на Имотека

Андрей Иванов
Консултант недвижими имоти
pin Пиши във Viber

Сходни оферти

Често задавани въпроси

Как протича сделка за покупка на имот с ипотечен кредит?

Какво можем да очакваме от пазара на имоти през 2025 г.?

Коя цена е определяща при покупка на имот?

Колко струва една оценка на имот?

Какво представлява данъчната оценка?