277

Тристаен апартамент за продажба, София, ID 674471

188 кв.м.
Бояна
Шпакловка и замазка
568 852 EUR
3 026 €/кв.м.

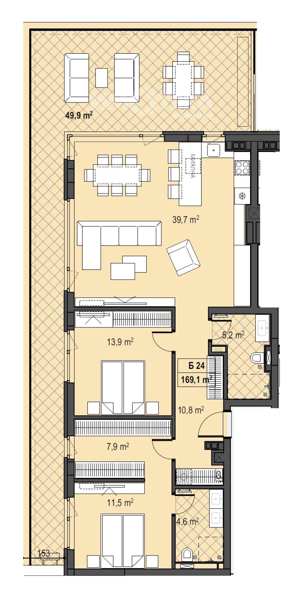
Гъвкави схеми на плащане! 20% на ПД и 80% след АКТ 16! Прекрасен тристаен апартамент със западно изложение, позициониран на последен етаж с РЗП-187,74м2, просторни стаи и разкошна тераса. Върху площ от 169,10м2 са разположени: дневна с кухненски бокс и трапезария-39,7м2, спалня с гардеробна-19,4м2 и 4,6м2 баня към нея, втора спалня-13,9 м2, още една баня с тоалетна-5,2м2 и разкошна парти тераса-49,9м2. Налични ПМ и гаражи. Термопомпа в цената на всеки апартамент! Без комисион. Един модерен затворен комплекс в кв. Бояна, проектиран за хора и семейства с усет към качествения живот, търсещи баланса между природата и градската динамика. Локацията осигурява чист въздух, бърз достъп до центъра на столицата и подбрана среда с функционални и стилни жилища. Комплексът предлага нов начин на живот – хармония между града и природата. Богато озеленяване, детска площадка, страхотни гледки. Функционално планирани жилища с прави линии и просторни помещения, създадени за реален комфорт и лесно обзавеждане. Впечатляващо малък процент общи части към апартаментите.

Луксозна сграда с модерна фасада - окачена, вентилируема от широкоформатен гранитогрес с изолация от каменна вата 12см. Подово отопление във всички стаи. Саморазливна калциево сулфатната замазка, даваща по-добро топлоотдаване. Опциите за отопление и охлаждане са: термопомпа или климатици. Настилки по терасите двоен под с гранитогресни плочи с дебелина 2см. Дограмата е висококачествен профил алуминий на етем в цвят 7016 по рал. Парапетите по терасите от алуминий, прахово боядисан. Асансьор със стъклена фасада. Общи части с широкоформатен гранитогрес по подовете.

Стратегически разположен близо до автобусни линии и с бърз достъп до бул. „България“ и Южната дъга, комплексът гарантира комфортно ежедневие и лесна мобилност. Непосредствената близост до Резиденция Бояна осигурява уникална комбинация от престиж и спокойна жилищна атмосфера – едно от престижните и зелени места в района.

Контролиран достъп и безопасност за семейството. Уредено и поддържано общо пространство. Без нежелан трафик и преминаващи хора.

Обади се СЕГА и цитирай този код 674471.


Оферта от партньор на Имотека

Веска Георгиева
Консултант недвижими имоти
pin Пиши във Viber

Оферти от същата сграда

Често задавани въпроси

Как протича сделка за покупка на имот с ипотечен кредит?

Коя е най-подходящата локация за търсене на къщи за продажба?

В какъв срок се издава данъчна оценка?

Каква е цената на квадратен метър за София?

Как се прави анализ на пазара на недвижими имоти?