363

Тристаен апартамент за продажба, София, ID 646739

110 кв.м.
Красна поляна 2
Шпакловка и замазка
174 868 EUR
1 590 €/кв.м.

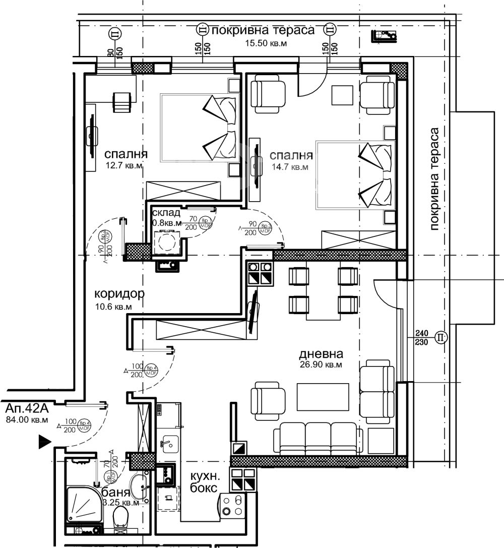
Тристаен апартамент разположен в нова жилищна сграда. Разпределение: Просторна дневна зона с големи прозорци, които осигуряват много естествена светлина, две спални, баня с тоалетна, складово помещение,  две тераси и антре. Има възможност за закупуване на подземно паркомясто. Изложение: ЮИ      

Сграда, предлагаща функционално разпределение на апартаментите и само 10% общи части. Френски прозорци и светла височина на помещенията 2.65м. Технически параметри: Конструкция: монолитна стоманобетонна Външни и преградни стени: зидария висок клас енергоефективна керамична тухла, топлоизолация -10 см каменна вата; Фасада: алуминиеви архитектурни детайли с меден цвят и висок клас немска минерална мазилка CAPAROL /или еквивалент/.  Дограма: 5-камерена PVC немска, с троен, подсилен шумоизолационен стъклопакет, слънцезащитно покритие - 4 сезона, флоат, ниско емисионно Ка стъкло, топъл дистанционер; Входни врати: блиндирани, с касова брава, външна, пожароустойчива; Стени и тавани: машинно-гипсова мазилка; Завишена шумоизолация на преградните стени между отделните апартаменти; Под: с допълнителна шумоизолация под плаваща замазка; Балкони: първокачествен мразоустойчив гранитогрес, полиуретанова хидроизолация  гравирани алуминиеви детайли. Общи части: настилки – гранитогрес/гранит;  стени и тавани – латекс; Асансьори: от сертифициран вропейски прозводител - висок клас, просторни, с осигурен достъп на хора с увреждания; ВиК инсталации: водопровод – изпълнен с полипропиленови, шумопоглъщащи тръби, до тапа; Канализация – изпълнена със специализирани  PVC тръби, до точка; Ел.инсталация: изцяло изградена с монтирани прекъсвачи, ключове, контакти, монтирано апартаментно табло; Слаботокови инсталации: изградено окабеляване за кабелна телевизия, интернет и звънчева и домофонна инсталация; Отоплителна инсталация: изградена сградна газова инсталация; инсталирани изводи за монтаж на климатици и монтирана кутия за климатик; Вертикална планировка: изградена, съгласно утвърден проект за паркоустройство и благоустройство с богато озеленяване;  Обезопасен подземен и надземен паркинг/гаражи, включително и за велосипеди. Множество зарядни станции за електрически автомобили.  Автоматична пожароизвестяваща и пожарогасяща инстилация със собствен резервоар и помпена станция.  Вечнозелени растения и богато ФАСАДНО озеленяване. Детска площадка.  Детска градина. 

В близост до училища, детски градини, болница "Надежда", метростанция "Овча купел", трамвайни линии 4,11 и 22, автобусни линии 11, 60 и 83.  

Схема на плащане: Вариант I  (преференциална цена с отстъпка за начин на плащане) 40% от цената - при подписване на предварителен договор 15% от цената - на кота 0 10% от цената - при достигане на плоча 30 % от цената - Акт 14 5% от цената  - Акт 16 Вариант II    (+ 6 % над цената по Вариант I) 35% от цената - при подписване на предварителен договор 60% от цената  - Акт 14 5% от цената - Акт 16 Крайни цени с ДДС! Очакван акт 16 в началото на 2027г  

Обади се СЕГА и цитирай този код 646739.


Оферта от партньор на Имотека

Десислава Петрова
Консултант недвижими имоти
pin Пиши във Viber

Оферти от същата сграда

За квартал Красна поляна, София и недвижимите имоти

Квартал Красна поляна се намира в западната част на столицата София и е обособен в три самостоятелни зони – Красна поляна I, II и III. На север той граничи със ж.к. „Западен парк“, на изток – с ж.к. „Разсадника–Коньовица“, ж.к. „Сердика“ и Зона Б-5, а в западна посока съседен квартал е „Факултета“.

 

До квартала се осигурява удобен достъп чрез ключови булеварди като „Никола Мушанов“, „Вардар“ и „Възкресение“. Транспортната връзка с останалите части на София е добре развита – през района преминават автобусни линии № 11, 72, 77 и 83, електробус E60, както и трамвайни линии № 11 и 22. Допълнително удобство е близостта до метростанциите „Вардар“ и „Константин Величков“, обслужвани от линии М1 и М4 на софийското метро.

 

Образователната инфраструктура в Красна поляна е добре представена с няколко основни и средни училища, както и детски градини. Сред по-разпознаваемите учебни заведения са 92 ОУ „Димитър Талев“, 147 ОУ „Йордан Радичков“, 17 СУ „Дамян Груев“ и 28 СУ „Алеко Константинов“. За най-малките жители са на разположение общински детски градини като ДГ №196 „Шарл Перо“, ДГ №54 „Дъга“ и ДГ №126 „Тинтява“.
Здравното обслужване в района е осигурено от редица болнични и медицински заведения. Сред тях са МБАЛ „Надежда“, Първа АГ болница „Света София“, както и медицинските центрове „Феникс 87“ и „Медик“, които предоставят разнообразни и качествени здравни услуги.

 

Кварталът предлага и богати възможности за пазаруване и свободно време – налични са както големи търговски вериги, така и малки квартални магазини и дрогерии. От скоро значим търговски обект в района е HOLIDAY PARK | София – Красна поляна, където се намират магазини, заведения и разнообразни услуги. Допълнително жителите разполагат с фитнес зали, баскетболна зала „Септември“, както и с добре оформени зелени площи и междублокови пространства, подходящи за разходки и спорт.

 

Застрояването в района е многообразно и отразява различни етапи от развитието на града. Срещат се еднофамилни къщи от 20-те и 30-те години на XX век, тухлени жилищни блокове и кооперации, както и масивни панелни и железобетонни сгради, изградени през 70-те и 80-те години. През последните години се наблюдава и засилено строителство на нови жилищни сгради и малки модерни комплекси.

 

Съчетанието от разнообразен жилищен фонд, изградена инфраструктура, добра транспортна свързаност и множество удобства прави квартал Красна поляна предпочитан избор както за постоянно живеене, така и за инвестиция в недвижими имоти.
На сайта на Имотека може да откриете обяви за разнообразни имоти с функционално разпределение в Красна поляна, които отговарят на различни бюджети и предпочитания. 

Нашите брокери недвижими имоти ще ви посрещнат с професионализъм и добро отношение. Професионалната помощ е от голямо значение, тъй като ние сме наясно с пазара. 

Тук може да се запознаете и с местоположението на офисите на ИМОТЕКА в София.

Често задавани въпроси

Как се прави анализ на пазара на недвижими имоти?

Към кого да се обърнем за данъчна оценка на имот?

Какви са прогнозите за кварталите през 2025г.?

Каква е цената на квадратен метър за София?

Коя цена е определяща при покупка на имот?