358

Тристаен апартамент за продажба, София, ID 664612

115 кв.м.
Овча купел 2
Шпакловка и замазка
171 055 EUR
1 487 €/кв.м.

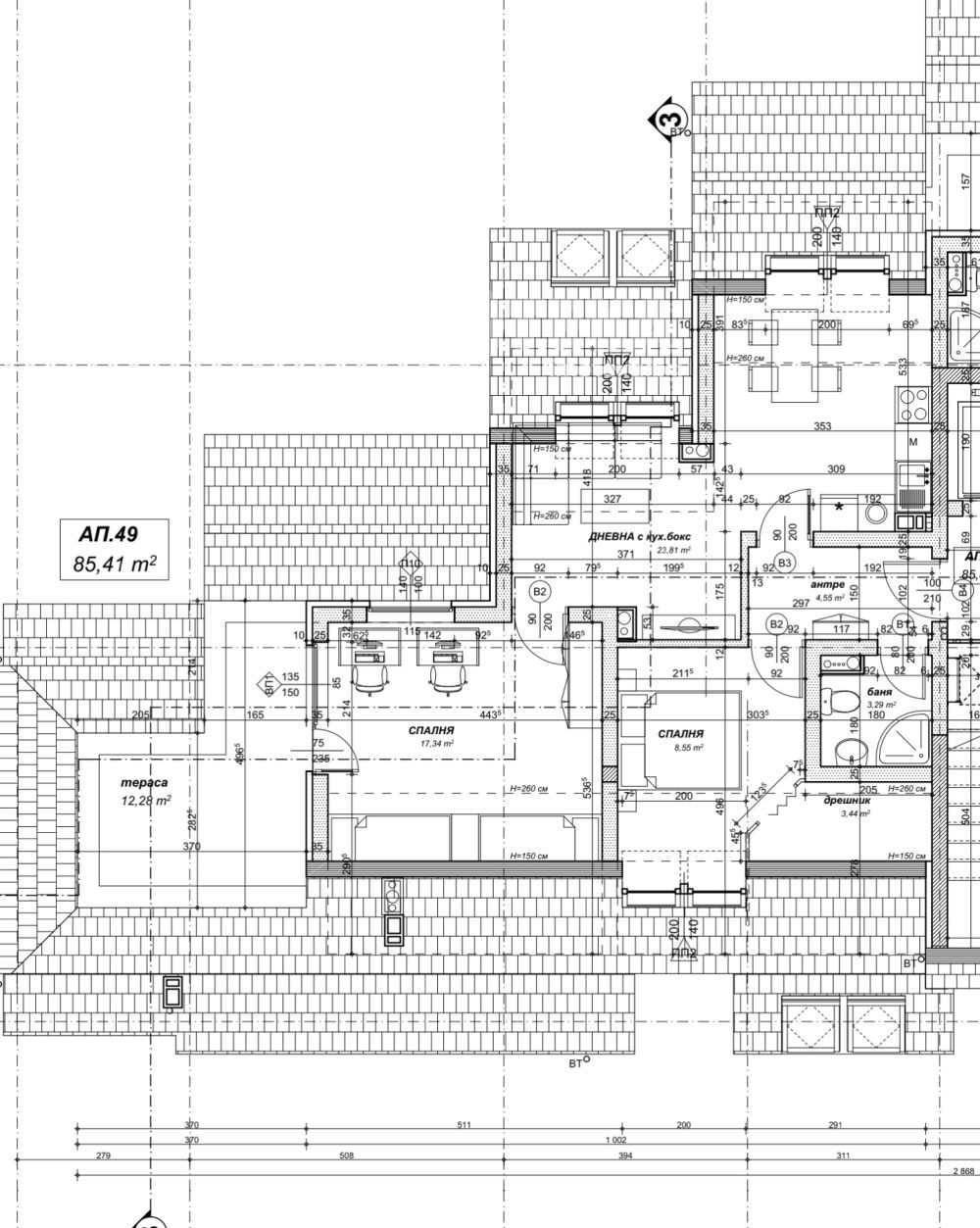
Тристаен апартамента със застроена площ от 85,41 кв.м + тераса 13,98 кв.м. Разпределение: антре, дневна с кухненски бокс 23,81 кв.м, две спални (17,34 кв.м и 11,99 кв.м), тераса и баня с тоалетна. Допълнително могат да бъдат закупени външни паркоместа на цена 16 500 евро или партерни гаражи (различни по размер) на цени от 36 000 евро до 48 000 евро.

Сградата е с акт 14. Един вход с осем жилищни етажа и партерен етаж, където са разположени 13 гаража и 37 външни паркоместа.  Изпълнението на строежа ще бъде завършено м. май 2026 г.

Луксозна жилищна сграда разположена в кв. "Овча купел 2", на 400 м. от едноименната метростанция, в близост до 149 СОУ, Лидл и други търговски и спортни центрове. Районът е с уредена инфраструктура и множество транспортни връзки.

Утвърден инвеститор и строител с 30 годишен опит и над 70 жилищни и административни сгради.

Обади се СЕГА и цитирай този код 664612.


Оферта от партньор на Имотека

Галя Георгиева
Консултант недвижими имоти
pin Пиши във Viber

Сходни оферти

Често задавани въпроси

Какво представлява данъчната оценка?

Към кого да се обърнем за данъчна оценка на имот?

В какъв срок се издава данъчна оценка?

През кои квартали минава метрото в София?

Как се прави анализ на пазара на недвижими имоти?

За квартал Овча купел, София и недвижимите имоти

Овча купел се намира в югозападната част на София и представлява един от най-големите жилищни райони в столицата. Застрояването на територията започва в началото на XX век, а днес кварталът е административно обособен в две части  „Овча купел 1“ и „Овча купел 2“, които се различават по етапи на изграждане и тип застрояване.

Районът е обслужван от метролиния М3, която включва станции „Овча купел“, „Мизия/НБУ“, „Овча купел II“ и „Горна баня“. Те осигуряват директна връзка с централните квартали и останалата част на града. През квартала преминават множество автобусни линии – 11, 59, 60, 73, 102, 103, 107, 111, 260, както и трамвайни маршрути с номера 4, 5 и 11.

Основните булеварди, „Овча купел“, „Президент Линкълн“, „Монтевидео“ и „Цар Борис III“, заедно с Околовръстния път, осигуряват удобен автомобилен достъп както до централните части на София, така и до периферните зони и изходите на града. 

Застрояването в Овча купел се характеризира с комбинация от по-старо панелно и ЕПК строителство и нови жилищни комплекси с модерна визия и функционално планиране. Новите проекти, разположени в близост до метростанции и основни булеварди, предизвикват висок интерес от купувачи и инвеститори, търсещи добро съотношение между цена, местоположение и удобства.

Кварталът предлага добре изградена градска среда с широк набор от услуги, детски градини, училища, здравни заведения, търговски обекти и заведения за хранене. Сред по-значимите образователни институции са 149 Средно училище „Иван Хаджийски“ и Нов български университет. На територията функционират няколко детски градини, както и здравни структури като МБАЛ „Доверие“, Медицински център „Про Вита“ и Болница за рехабилитация „Сердика“. В района се намират и аптеки, специализирани медицински кабинети и магазини на големи търговски вериги.

Жителите на Овча купел разполагат с достъп до зелени площи и паркови пространства, сред които парк „Овча купел“. Близостта до планина Витоша и до Западен парк създава възможности за активен отдих и спорт на открито.
Благодарение на добрата транспортна свързаност, наличието на разнообразен жилищен фонд и устойчивото развитие на инфраструктурата, Овча купел се утвърждава като един от перспективните жилищни райони на София, подходящ както за живеене, така и за дългосрочни инвестиции.

На сайта на Имотека може да откриете обяви за разнообразни имоти с функционално разпределение в Овча купел, които отговарят на различни бюджети и предпочитания. 

Ето и бързи връзки до всички типове имоти в продажба в квартал Овча купел:

>>   двустайни апартаменти в Овча купел, София
>>   тристайни апартаменти в Овча купел, София
>>   многостайни апартаменти в Овча купел, София
>>   офиси в Овча купел, София
>>   търговски площи в Овча купел, София
 

Нашите брокери недвижими имоти ще ви посрещнат с професионализъм и добро отношение. Професионалната помощ е от голямо значение, тъй като ние сме наясно с пазара. 

Тук може да се запознаете и с местоположението на офисите на ИМОТЕКА в София.