162

Тристаен апартамент за продажба, София, ID 680844

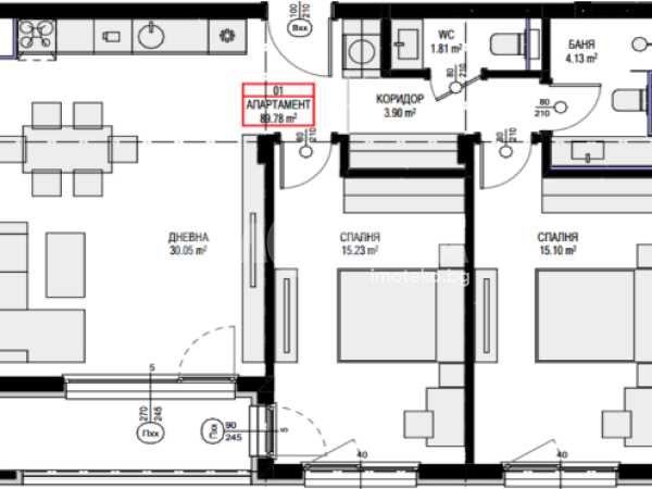
109 кв.м.
Овча купел 2
Шпакловка и замазка
215 050 EUR
1 973 €/кв.м.

Модерна жилищна сграда в Овча Купел 2, част от мащабен комплекс с обща визия и инфраструктура, от инвеститор с доказано качество на строителство и солидна репутация на пазара. Стилен дизайн и функционални разпределения, разположен в предпочитан район с удобна градска инфраструктура. Просторен тристаен апартамент, с южно изложение, състоящ се от: входно антре, дневна с трапезария и кухненски бокс, две спални, тераса, баня с тоалетна и отделна тоалетна.  

Сграда от 2 входа, на 9 етажа. Богат избор от жилища с една или две спални. Възможност за обединение. Отопление на газ. Към всеки апартамент има прилежащо мазе или склад. Контролиран достъп, асансьор и висок клас дограма.

Сградата се намира на няколко минути пешеходно разстояние от НБУ и метростанция "Мизия". 

Обади се СЕГА и цитирай този код 680844.


Оферта от партньор на Имотека

Стоян Фотев
Консултант недвижими имоти
pin Пиши във Viber

Оферти от същата сграда

За квартал Овча купел, София и недвижимите имоти

Овча купел се намира в югозападната част на София и представлява един от най-големите жилищни райони в столицата. Застрояването на територията започва в началото на XX век, а днес кварталът е административно обособен в две части  „Овча купел 1“ и „Овча купел 2“, които се различават по етапи на изграждане и тип застрояване.

Районът е обслужван от метролиния М3, която включва станции „Овча купел“, „Мизия/НБУ“, „Овча купел II“ и „Горна баня“. Те осигуряват директна връзка с централните квартали и останалата част на града. През квартала преминават множество автобусни линии – 11, 59, 60, 73, 102, 103, 107, 111, 260, както и трамвайни маршрути с номера 4, 5 и 11.

Основните булеварди, „Овча купел“, „Президент Линкълн“, „Монтевидео“ и „Цар Борис III“, заедно с Околовръстния път, осигуряват удобен автомобилен достъп както до централните части на София, така и до периферните зони и изходите на града. 

Застрояването в Овча купел се характеризира с комбинация от по-старо панелно и ЕПК строителство и нови жилищни комплекси с модерна визия и функционално планиране. Новите проекти, разположени в близост до метростанции и основни булеварди, предизвикват висок интерес от купувачи и инвеститори, търсещи добро съотношение между цена, местоположение и удобства.

Кварталът предлага добре изградена градска среда с широк набор от услуги, детски градини, училища, здравни заведения, търговски обекти и заведения за хранене. Сред по-значимите образователни институции са 149 Средно училище „Иван Хаджийски“ и Нов български университет. На територията функционират няколко детски градини, както и здравни структури като МБАЛ „Доверие“, Медицински център „Про Вита“ и Болница за рехабилитация „Сердика“. В района се намират и аптеки, специализирани медицински кабинети и магазини на големи търговски вериги.

Жителите на Овча купел разполагат с достъп до зелени площи и паркови пространства, сред които парк „Овча купел“. Близостта до планина Витоша и до Западен парк създава възможности за активен отдих и спорт на открито.
Благодарение на добрата транспортна свързаност, наличието на разнообразен жилищен фонд и устойчивото развитие на инфраструктурата, Овча купел се утвърждава като един от перспективните жилищни райони на София, подходящ както за живеене, така и за дългосрочни инвестиции.

На сайта на Имотека може да откриете обяви за разнообразни имоти с функционално разпределение в Овча купел, които отговарят на различни бюджети и предпочитания. 

Ето и бързи връзки до всички типове имоти в продажба в квартал Овча купел:

>>   двустайни апартаменти в Овча купел, София
>>   тристайни апартаменти в Овча купел, София
>>   многостайни апартаменти в Овча купел, София
>>   офиси в Овча купел, София
>>   търговски площи в Овча купел, София
 

Нашите брокери недвижими имоти ще ви посрещнат с професионализъм и добро отношение. Професионалната помощ е от голямо значение, тъй като ние сме наясно с пазара. 

Тук може да се запознаете и с местоположението на офисите на ИМОТЕКА в София.

Често задавани въпроси

Колко струва една оценка на имот?

Какво можем да очакваме от пазара на имоти през 2025 г.?

Коя е най-подходящата локация за търсене на къщи за продажба?

Как протича сделка за покупка на имот с ипотечен кредит?

Към кого да се обърнем за данъчна оценка на имот?