259

Тристаен апартамент за продажба, София, ID 675395

98 кв.м.
Слатина
Шпакловка и замазка
238 000 EUR
2 429 €/кв.м.

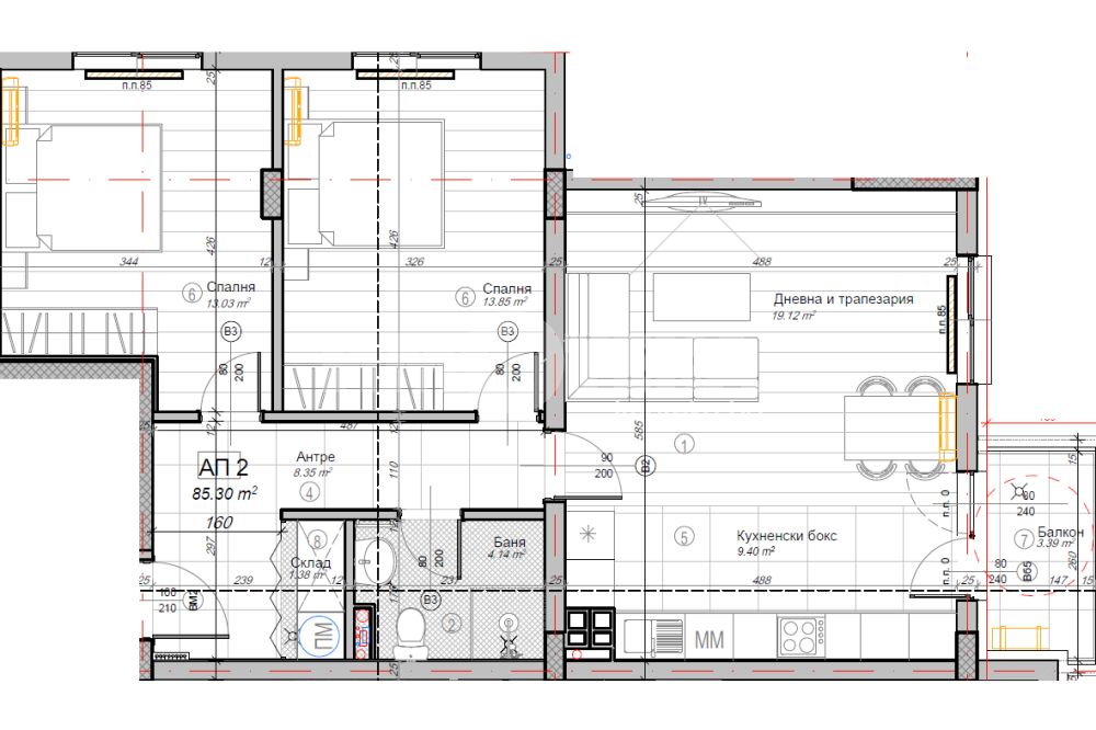
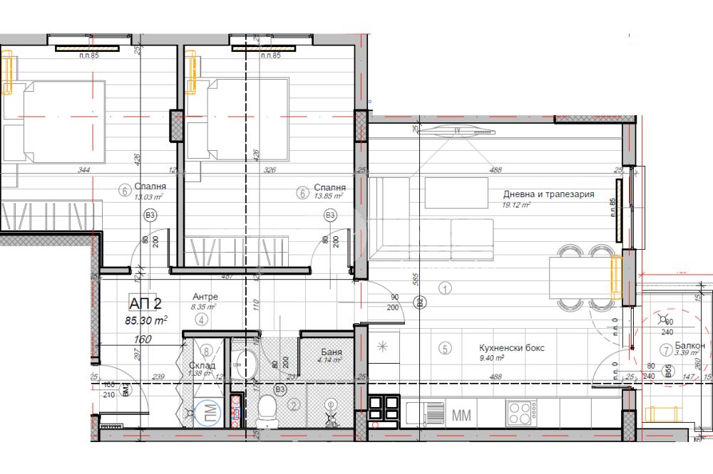
Разкошен тристаен апартамент на първи етаж над партер на кота +2,85м. Жилището е с РЗП-97,67м2 и ЗП-85,30м2. Изключително компактно жилище с отлично разпределение; антре, дневна с кухненски бокс и трапезария-28,52м2 с излаз на тераса, две спални-13,03м2 и 13,85м2, баня с тоалетна-4,14м2 и склад. Налични ПМ и гаражи. Цените са крайни с включен ДДС. Без комисион. Сграда с характер и детайл, създадена за модерния градски човек, който не прави компромиси с качеството. С обща РЗП 3986,38 кв.м, проектът се отличава с изчистена архитектура, функционални разпределения и усещане за дискретен престиж. Подземните и наземните гаражи, както и външните паркоместа, осигуряват комфорт и удобство за всяко домакинство. Отоплението е централно чрез „Топлофикация София“, а предвидените изводи за климатици и бойлери дават възможност за индивидуално решение и прецизност във финалния завършек. Сградата е с комплексна фасадна топлоизолация – 12 см, PVC дограма 5–7 камерна и висок клас довършителни работи в общите части, създаващи спокойна и подчертано стилна атмосфера. Инсталираният асансьор Orona (Испания) допълва усещането за надеждност и комфорт. Това е архитектура, която говори сама за себе си – изчистена, качествена, съвременна, създадена да бъде дом с висока стойност във времето.

Висок клас строителство, реномиран инвеститор с множество завършени сгради.

Автобус 1,5,6,11,75,5Б,123,288 404,9; Трамвай 23,21 ; близо до бъдеща Метростанция.

Отлична локация, район с изградена инфраструктура, бъдеща метростанция, детска градина, училища, магазни.

Обади се СЕГА и цитирай този код 675395.


Оферта от партньор на Имотека

Веска Георгиева
Консултант недвижими имоти
pin Пиши във Viber

Оферти от същата сграда

Често задавани въпроси

Какво можем да очакваме от пазара на имоти през 2025 г.?

Как да изберем брокер при продажба на апартамент?

Как се прави анализ на пазара на недвижими имоти?

Каква е цената на квадратен метър за София?

Коя е най-подходящата локация за търсене на къщи за продажба?