8

Тристаен апартамент за продажба, София, ID 675407

117 кв.м.
Слатина
Шпакловка и замазка
325 000 EUR
2 778 €/кв.м.

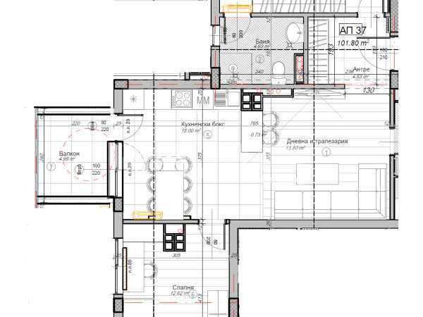
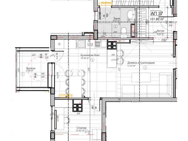
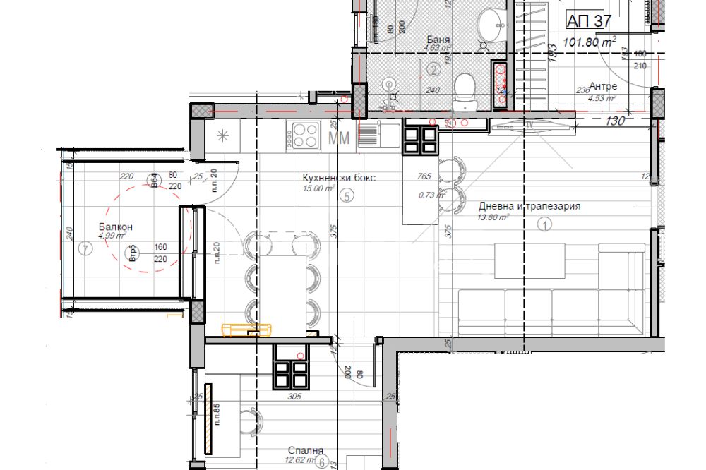
Разкошен тристаен апартамент на шести последен етаж. Жилището е с РЗП-116,56м2 и ЗП-101,80м2. Изключително компактно жилище с отлично разпределение: антре, дневна с кухненски бокс и трапезария-28,8м2 с излаз на балкон-4,99м2, две спални-12,62м2 с излаз на балкон-4,82м2, втора спалня-15,39м2 с излаз на балкон-2,23м2, баня с тоалетна-4,63м2 и склад. Налични ПМ и гаражи. Цените са крайни с включен ДДС. Сграда с характер и детайл, създадена за модерния градски човек, който не прави компромиси с качеството. С обща РЗП 3986,38 кв.м, проектът се отличава с изчистена архитектура, функционални разпределения и усещане за дискретен престиж. Подземните и наземните гаражи, както и външните паркоместа, осигуряват комфорт и удобство за всяко домакинство. Отоплението е централно чрез „Топлофикация София“, а предвидените изводи за климатици и бойлери дават възможност за индивидуално решение и прецизност във финалния завършек. Сградата е с комплексна фасадна топлоизолация – 12 см, PVC дограма 5–7 камерна и висок клас довършителни работи в общите части, създаващи спокойна и подчертано стилна атмосфера. Инсталираният асансьор Orona (Испания) допълва усещането за надеждност и комфорт. Това е архитектура, която говори сама за себе си – изчистена, качествена, съвременна, създадена да бъде дом с висока стойност във времето.

Висок клас строителство, реномиран инвеститор с множество завършени сгради.

Автобус 1,5,6,11,75,5Б,123,288 404,9; Трамвай 23,21 ; близо до бъдеща Метростанция.

Отлична локация, район с изградена инфраструктура, бъдеща метростанция, детска градина, училища, магазни.

Обади се СЕГА и цитирай този код 675407.


Оферта от партньор на Имотека

Веска Георгиева
Консултант недвижими имоти
pin Пиши във Viber

Оферти от същата сграда

Често задавани въпроси

Каква е цената на квадратен метър за София?

Какво представлява данъчната оценка?

Как се прави анализ на пазара на недвижими имоти?

Как протича сделка за покупка на имот с ипотечен кредит?

Какво можем да очакваме от пазара на имоти през 2025 г.?