12

Тристаен апартамент за продажба, София, ID 688712

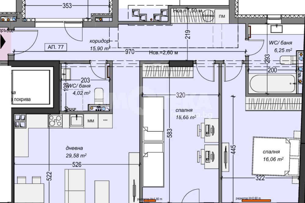
141.09 кв.м.
Суха река
Шпакловка и замазка
389 000 EUR
2 757 €/кв.м.

Представяме Ви модерен затворен жилищен комплекс, създаден с мисъл за комфорт, сигурност и качествен градски начин на живот. Комплексът се състои от две жилищни сгради с елегантна архитектура и функционално проектирани апартаменти, отговарящи на съвременните изисквания за удобство и ефективност. Междублоковото пространство е изцяло озеленено и оформено като приятна зона за отдих с алеи, пейки и детска площадка, което създава спокойна и уютна среда за живеене, подходяща както за семейства, така и за инвестиция. Възможност за закупуване на паркоместа на цена 27 600 евро и гаражи на цена от 32 400 евро

Сградите са проектирани с висок клас строителни материали и внимание към детайла: Монолитна стоманобетонна конструкция Висок клас хидроизолация от Penetron (САЩ) Многокамерни керамични тухли Wienerberger с допълнителна шумоизолация Смесена вентилируема фасада с HPL плоскости и минерална мазилка PVC дограма с троен стъклопакет за жилищата и алуминиева дограма за общите части Блиндирани и пожароустойчиви входни врати Изцяло изградени ВиК и електроинсталации Подготовка за интернет, телевизия, СОТ и домофонна система Отопление на ТЕЦ с изградена абонатна станция Асансьор от висок клас Orona Луксозно завършени общи части по дизайнерски проект Комплексът включва общо около 80 апартамента, като са осигурени подземни и надземни паркоместа, гаражи и мазета за удобство на живущите.

Комплексът се намира в район Подуяне, гр. София – изключително комуникативна зона с бърз достъп до централната част на града. В пешеходна близост се намират: метростанция спирки на градски транспорт детски градини и училища голям парк Парк Герена спортен комплекс Левски пазар, търговски обекти и супермаркети заведения, включително Неделя поликлиника и обществени услуги Районът се развива активно през последните години и се утвърждава като предпочитано място за живеене с модерна градска среда.

Затворен комплекс с контролирана среда Две модерни жилищни сгради Богато озеленено вътрешно пространство Детска площадка и зони за отдих Висок клас строителство и материали Отлична комуникация и транспорт Близост до метро, парк и ключови удобства Осигурени паркоместа, гаражи и мазета Подходящ както за живеене, така и за инвестиция

Обади се СЕГА и цитирай този код 688712.

Никола Яначков
Консултант недвижими имоти
pin Пиши във Viber

Оферти от същата сграда

За квартал Суха река, София и недвижимите имоти

Квартал Суха река се намира в североизточната част на София и е утвърден жилищен район с дългогодишно развитие. Той граничи с кварталите Хаджи Димитър, Подуяне, Левски, Гео Милев и Орландовци.

Транспортната свързаност на района е добра и се осигурява от основни пътни артерии като бул. „Ботевградско шосе“, бул. „Владимир Вазов“, ул. „Витиня“ и ул. „Александър Екзарх“, които предоставят достъп до центъра на града, източните квартали и основните изходи от София. Общественият транспорт включва автобусни линии №78, 79, 90, 100 и 120, както и тролейбусни линии №1 и 2, осигуряващи връзки с централната градска част, ж.к. „Левски“, ж.к. „Младост“ и северните райони. В относителна близост се намират и метростанции по линия М3, което допълнително улеснява придвижването.

Жилищната среда в Суха река е разнообразна и включва панелни блокове, изградени през 60-те и 70-те години, тухлени кооперации и по-нови сгради с ограничена етажност. В отделни части на квартала са запазени и еднофамилни къщи. През последните години се наблюдава постепенно обновяване на жилищния фонд чрез саниране на съществуващи сгради и реализация на нови жилищни проекти, което поддържа устойчив интерес към района.

Образователната инфраструктура в квартала е добре развита. На неговата територия функционират няколко общински детски градини и училища, сред които 49 ОУ „Бенито Хуарес“ и 44 СУ „Неофит Бозвели“, а в съседните райони Подуяне и Гео Милев са разположени и гимназии и учебни центрове.

Здравното обслужване в Суха река и околните зони е добре организирано. В близост се намират УМБАЛ „Царица Йоанна – ИСУЛ“, ДКЦ-18, Медицински център „Хризантема“, както и редица лаборатории и аптеки, разположени по основните булеварди и във вътрешнокварталните части.

Търговската и обслужваща инфраструктура включва супермаркети, квартални магазини, пазари, аптеки и заведения за хранене. В непосредствена близост са разположени и по-големи търговски обекти и бизнес зони по бул. „Ботевградско шосе“, както и удобен достъп до търговски центрове в районите Подуяне и Младост.

Значително предимство на района е наличието на зелени пространства като парк „Гео Милев“, парк „Герена“ и крайречните зони по поречието на Перловска река.

Комбинацията от утвърдена жилищна среда, добра транспортна обезпеченост и развита инфраструктура утвърждава квартал Суха река като стабилен и предпочитан район за покупка на жилище както за лично ползване, така и за дългосрочни инвестиции.


На сайта на Имотека може да откриете обяви за разнообразни имоти с функционално разпределение в Суха река, които отговарят на различни бюджети и предпочитания. 

Нашите брокери недвижими имоти ще ви посрещнат с професионализъм и добро отношение. Професионалната помощ е от голямо значение, тъй като ние сме наясно с пазара. 

Тук може да се запознаете и с местоположението на офисите на ИМОТЕКА в София.

Често задавани въпроси

Към кого да се обърнем за данъчна оценка на имот?

Коя е най-подходящата локация за търсене на къщи за продажба?

Колко струва една оценка на имот?

Как протича сделка за покупка на имот с ипотечен кредит?

Как да изберем брокер при продажба на апартамент?