413

Многостаен за продажба, София, ID 670504

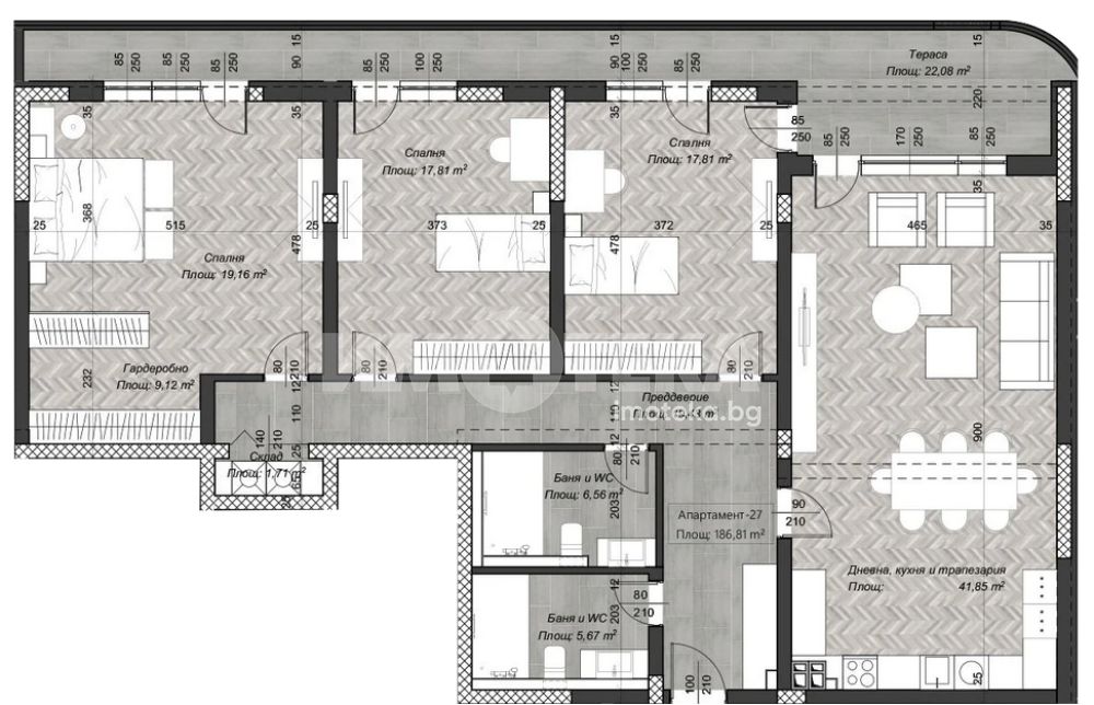
220.27 кв.м.
Център
Шпакловка и замазка
533 050 EUR
2 420 €/кв.м.

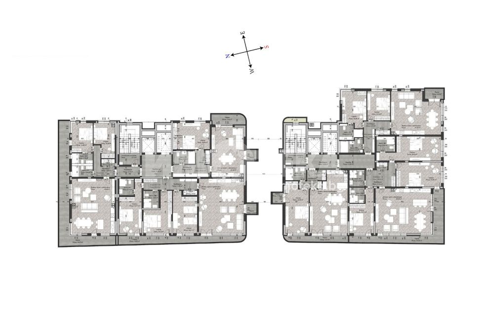
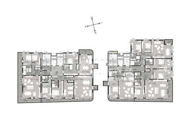
Многостаен апартамент с източно изложение, състоящ се от антре, просторна дневна с кухненски бокс,  три спални, дрешник, складово помещение, две бани с тоалетна и тераса. Жилището е разположено в елегантна и престижна сграда в центъра на София, съчетаваща модерна архитектура с изчистен дизайн и впечатляващо фасадно остъкляване, което осигурява простор и светлина. Намира се на комуникативно място с удобен достъп до подземен и надземен паркинг, в непосредствена близост до  ключови транспортни връзки и удобства. 

Фасадата е с изчистени форми, като са използвани фасадни декоративни елементи, които подчертават обемите. Конструкцията на сградата е монолитна стоманобетонова с външни зидове от 25см тухли + 10см топлоизолация и преградни стени от 25 см. Предвидена е богато озеленена общодостъпна покривна тераса в акцентната зона на сградата – зоната на пробива.  Фасадното остъкляване осигурява максимално естествено осветление във всяко жилищно помещение. Немски алуминиеви профил с троен стъклопакет Schüco. Зидария от керамични тухли с дебелина 25см и 12см от Wienerberger. Входните пространства са маркирани с декоративна рамка с облицовка от камък. Партерът е с финиш от еталбонд, който ествствено преминава през декоративните слънцезащитни елементи във височина до декоративния профил, който рамкира обществената зона.

Сградата се намира на много комуникативно място - в близост до автобусни спирки и две метростанции - Константин Величков и Опълченска, множество медицински центрове, детски градини и удобства в близост до сградата. На пешеходно разстояние от МОЛ София.

Отлична локация. Функционални и светли жилища. Луксозни общи части. Озеленена покривна градина. Сигурност – контрол на достъпа.

Обади се СЕГА и цитирай този код 670504.


Оферта от партньор на Имотека

Стоян Фотев
Консултант недвижими имоти
pin Пиши във Viber

Оферти от същата сграда

За квартал Център, София и недвижимите имоти

Центърът на София е историческото и административно ядро на столицата, изградено върху основите на римския град Сердика. Районът обхваща територията между булевардите „Васил Левски“, „Мария Луиза“, „Патриарх Евтимий“, „Сливница“ и „Христо Ботев“ и съчетава архитектурно наследство с модерна градска инфраструктура.

Транспортната мрежа в квартала е добре развита и включва три линии на метрото, с метростанции „Сердика“, „НДК“, „Софийски университет“, „Опълченска“ и „Лъвов мост“. Районът се обслужва от множество автобусни, тролейбусни и трамвайни линии, което осигурява лесен достъп до всички части на града. Основните булеварди и добре организираното пътно движение правят придвижването удобно както за живущите, така и за работещите в района.

 

Жилищният фонд е разнообразен, от реновирани кооперации с историческа стойност, до новопостроени сгради с подсигурени удобства. Това предоставя широк избор за различни профили купувачи, включително млади семейства, професионалисти и инвеститори.

 

В квартала се намират държавни и частни училища, детски градини, както и водещи висши учебни заведения като Софийски университет „Св. Климент Охридски“, УАСГ, Националната художествена академия и Музикалната академия. Медицинските услуги са достъпни чрез държавни и частни болници, поликлиники и аптеки, сред които МБАЛ „Св. Екатерина“ , Първа градска болница и УМБАЛ „Александровска“ и УМБАЛ „Александровска“, която се намира в непосредствена близост.

 

Търговската и развлекателна инфраструктура включва магазини от големи вериги, супермаркети, бутици, пазари и ресторанти. Квартал Център е и културното средище на София. Тук се намират Националният театър „Иван Вазов“, Националната художествена галерия, катедралата „Св. Александър Невски“, както и множество театри, концертни зали и галерии.

 

Районът предлага достъп до зелени площи като Градската градина, Докторската градина, парковете „Заимов“ и „Борисова градина“, които осигуряват възможности за отдих и спорт в натоварената градска среда.
Комбинацията от централна локация, добре развита инфраструктура, културно-историческа стойност и удобства за ежедневен живот превръщат квартал Център в един от най-търсените райони на София за покупка на имот, подходящ както за дългосрочно живеене, така и за инвестиционни цели.
На сайта на Имотека може да откриете обяви за разнообразни имоти с функционално разпределение в Център, които отговарят на различни бюджети и предпочитания. 

Ето и бързи връзки до всички типове имоти в продажба в Център, София:

>>  едностайни апартаменти в Център, София
>>  двустайни апартаменти в Център, София
>>  тристайни апартаменти в Център, София
>>  многостайни апартаменти в Център, София
>>  офиси в Център, София
>>  търговски площи в Център, София

 

Нашите брокери недвижими имоти ще ви посрещнат с професионализъм и добро отношение. Професионалната помощ е от голямо значение, тъй като ние сме наясно с пазара. 

Тук може да се запознаете и с местоположението на офисите на ИМОТЕКА в София.

Често задавани въпроси

Каква е цената на квадратен метър за София?

Към кого да се обърнем за данъчна оценка на имот?

Коя е най-подходящата локация за търсене на къщи за продажба?

Какво можем да очакваме от пазара на имоти през 2025 г.?

През кои квартали минава метрото в София?