239

Тристаен апартамент за продажба, София, ID 670438

166 кв.м.
Център
Шпакловка и замазка
383 050 EUR
2 308 €/кв.м.

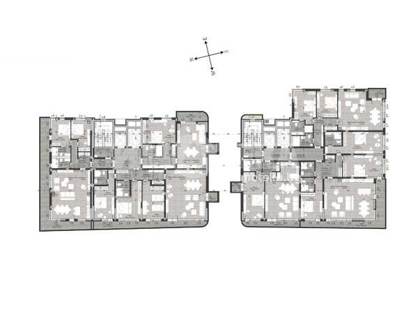
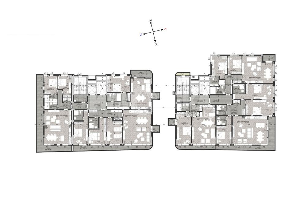
Тристаен апартамент с източно изложение, състоящ се от антре, просторна дневна с кухненски бокс,  две спални, складово помещение, две бани с тоалетна и тераса. Жилището е разположено в елегантна и престижна сграда в центъра на София, съчетаваща модерна архитектура с изчистен дизайн и впечатляващо фасадно остъкляване, което осигурява простор и светлина. Намира се на комуникативно място с удобен достъп до подземен и надземен паркинг, в непосредствена близост до  ключови транспортни връзки и удобства. 

Фасадата е с изчистени форми, като са използвани фасадни декоративни елементи, които подчертават обемите. Конструкцията на сградата е монолитна стоманобетонова с външни зидове от 25см тухли + 10см топлоизолация и преградни стени от 25 см. Предвидена е богато озеленена общодостъпна покривна тераса в акцентната зона на сградата – зоната на пробива.  Фасадното остъкляване осигурява максимално естествено осветление във всяко жилищно помещение. Немски алуминиеви профил с троен стъклопакет Schüco. Зидария от керамични тухли с дебелина 25см и 12см от Wienerberger. Входните пространства са маркирани с декоративна рамка с облицовка от камък. Партерът е с финиш от еталбонд, който ествствено преминава през декоративните слънцезащитни елементи във височина до декоративния профил, който рамкира обществената зона.

Сградата се намира на много комуникативно място - в близост до автобусни спирки и две метростанции - Константин Величков и Опълченска, множество медицински центрове, детски градини и удобства в близост до сградата. На кратко пешеходно разстояние от МОЛ София.

Отлична локация. Функционални и светли жилища. Луксозни общи части. Озеленена покривна градина. Сигурност – контрол на достъпа.

Обади се СЕГА и цитирай този код 670438.


Оферта от партньор на Имотека

Стоян Фотев
Консултант недвижими имоти
pin Пиши във Viber

Оферти от същата сграда

Често задавани въпроси

Как се прави анализ на пазара на недвижими имоти?

Какво можем да очакваме от пазара на имоти през 2025 г.?

Към кого да се обърнем за данъчна оценка на имот?

Какви са прогнозите за кварталите през 2025г.?

Коя цена е определяща при покупка на имот?

За квартал Център, София и недвижимите имоти

Центърът на София е историческото и административно ядро на столицата, изградено върху основите на римския град Сердика. Районът обхваща територията между булевардите „Васил Левски“, „Мария Луиза“, „Патриарх Евтимий“, „Сливница“ и „Христо Ботев“ и съчетава архитектурно наследство с модерна градска инфраструктура.

Транспортната мрежа в квартала е добре развита и включва три линии на метрото, с метростанции „Сердика“, „НДК“, „Софийски университет“, „Опълченска“ и „Лъвов мост“. Районът се обслужва от множество автобусни, тролейбусни и трамвайни линии, което осигурява лесен достъп до всички части на града. Основните булеварди и добре организираното пътно движение правят придвижването удобно както за живущите, така и за работещите в района.

 

Жилищният фонд е разнообразен, от реновирани кооперации с историческа стойност, до новопостроени сгради с подсигурени удобства. Това предоставя широк избор за различни профили купувачи, включително млади семейства, професионалисти и инвеститори.

 

В квартала се намират държавни и частни училища, детски градини, както и водещи висши учебни заведения като Софийски университет „Св. Климент Охридски“, УАСГ, Националната художествена академия и Музикалната академия. Медицинските услуги са достъпни чрез държавни и частни болници, поликлиники и аптеки, сред които МБАЛ „Св. Екатерина“ , Първа градска болница и УМБАЛ „Александровска“ и УМБАЛ „Александровска“, която се намира в непосредствена близост.

 

Търговската и развлекателна инфраструктура включва магазини от големи вериги, супермаркети, бутици, пазари и ресторанти. Квартал Център е и културното средище на София. Тук се намират Националният театър „Иван Вазов“, Националната художествена галерия, катедралата „Св. Александър Невски“, както и множество театри, концертни зали и галерии.

 

Районът предлага достъп до зелени площи като Градската градина, Докторската градина, парковете „Заимов“ и „Борисова градина“, които осигуряват възможности за отдих и спорт в натоварената градска среда.
Комбинацията от централна локация, добре развита инфраструктура, културно-историческа стойност и удобства за ежедневен живот превръщат квартал Център в един от най-търсените райони на София за покупка на имот, подходящ както за дългосрочно живеене, така и за инвестиционни цели.
На сайта на Имотека може да откриете обяви за разнообразни имоти с функционално разпределение в Център, които отговарят на различни бюджети и предпочитания. 

Ето и бързи връзки до всички типове имоти в продажба в Център, София:

>>  едностайни апартаменти в Център, София
>>  двустайни апартаменти в Център, София
>>  тристайни апартаменти в Център, София
>>  многостайни апартаменти в Център, София
>>  офиси в Център, София
>>  търговски площи в Център, София

 

Нашите брокери недвижими имоти ще ви посрещнат с професионализъм и добро отношение. Професионалната помощ е от голямо значение, тъй като ние сме наясно с пазара. 

Тук може да се запознаете и с местоположението на офисите на ИМОТЕКА в София.