133

Тристаен апартамент за продажба, София, ID 684803

102 кв.м.
XXXXXXXXXX
Шпакловка и замазка
XXX EUR
XXX €/кв.м.
Доход от наем приблизителен, месечен XXX

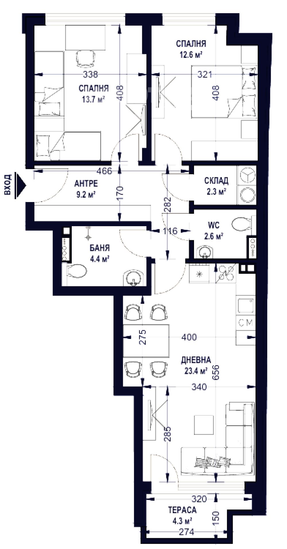
Тристаен апартамент в центъра на София, близо до бул. Васил Левски и бул. Княз А. Дундуков.  Имотът е със застроена площ от 84.20м2, разположен на ет.3 в нова сграда с акт 14 и е със следното разпределение: входно антре, всекидневна с кухненски бокс, две спални, две бани, склад и тераса. Изложение: юг/север  Отопление: ТЕЦ Има възможност за закупуване на паркомясто.

Сградата се изпълнява с висококачествени материали и ще бъде луксозно завършена. Жилищата се издават на шпакловка и замазка, с поставени радиатори, външни врати "Solid", вградени казанчета за моноблок, 5-камерна дограма Salamander с троен стъклопакет.

-  на тиха и удобна локация в центъра на София, на минути от СМГ и ИСУЛ.  - етап: акт 14 - срок за завършване: юли 2026г.

- В сградата предлагаме двустайни, тристайни и многостайни апартаменти, на различни етажи и с разнообразни разпределения и изложения. 

Обади се СЕГА и цитирай този код 684803.


Оферта от партньор на Имотека

Мариела Попова
Консултант недвижими имоти
pin Пиши във Viber

Оферти от същата сграда

За квартал Център, София и недвижимите имоти

Центърът на София е историческото и административно ядро на столицата, изградено върху основите на римския град Сердика. Районът обхваща територията между булевардите „Васил Левски“, „Мария Луиза“, „Патриарх Евтимий“, „Сливница“ и „Христо Ботев“ и съчетава архитектурно наследство с модерна градска инфраструктура.

Транспортната мрежа в квартала е добре развита и включва три линии на метрото, с метростанции „Сердика“, „НДК“, „Софийски университет“, „Опълченска“ и „Лъвов мост“. Районът се обслужва от множество автобусни, тролейбусни и трамвайни линии, което осигурява лесен достъп до всички части на града. Основните булеварди и добре организираното пътно движение правят придвижването удобно както за живущите, така и за работещите в района.

 

Жилищният фонд е разнообразен, от реновирани кооперации с историческа стойност, до новопостроени сгради с подсигурени удобства. Това предоставя широк избор за различни профили купувачи, включително млади семейства, професионалисти и инвеститори.

 

В квартала се намират държавни и частни училища, детски градини, както и водещи висши учебни заведения като Софийски университет „Св. Климент Охридски“, УАСГ, Националната художествена академия и Музикалната академия. Медицинските услуги са достъпни чрез държавни и частни болници, поликлиники и аптеки, сред които МБАЛ „Св. Екатерина“ , Първа градска болница и УМБАЛ „Александровска“ и УМБАЛ „Александровска“, която се намира в непосредствена близост.

 

Търговската и развлекателна инфраструктура включва магазини от големи вериги, супермаркети, бутици, пазари и ресторанти. Квартал Център е и културното средище на София. Тук се намират Националният театър „Иван Вазов“, Националната художествена галерия, катедралата „Св. Александър Невски“, както и множество театри, концертни зали и галерии.

 

Районът предлага достъп до зелени площи като Градската градина, Докторската градина, парковете „Заимов“ и „Борисова градина“, които осигуряват възможности за отдих и спорт в натоварената градска среда.
Комбинацията от централна локация, добре развита инфраструктура, културно-историческа стойност и удобства за ежедневен живот превръщат квартал Център в един от най-търсените райони на София за покупка на имот, подходящ както за дългосрочно живеене, така и за инвестиционни цели.
На сайта на Имотека може да откриете обяви за разнообразни имоти с функционално разпределение в Център, които отговарят на различни бюджети и предпочитания. 

Ето и бързи връзки до всички типове имоти в продажба в Център, София:

>>  едностайни апартаменти в Център, София
>>  двустайни апартаменти в Център, София
>>  тристайни апартаменти в Център, София
>>  многостайни апартаменти в Център, София
>>  офиси в Център, София
>>  търговски площи в Център, София

 

Нашите брокери недвижими имоти ще ви посрещнат с професионализъм и добро отношение. Професионалната помощ е от голямо значение, тъй като ние сме наясно с пазара. 

Тук може да се запознаете и с местоположението на офисите на ИМОТЕКА в София.

Често задавани въпроси

Как да изберем брокер при продажба на апартамент?

Каква е цената на квадратен метър за София?

Коя е най-подходящата локация за търсене на къщи за продажба?

Коя цена е определяща при покупка на имот?

Как протича сделка за покупка на имот с ипотечен кредит?