33

Тристаен апартамент за продажба, Варна, ID 669019

83 кв.м.
Младост 1
до ключ
185 000 EUR
2 229 €/кв.м.

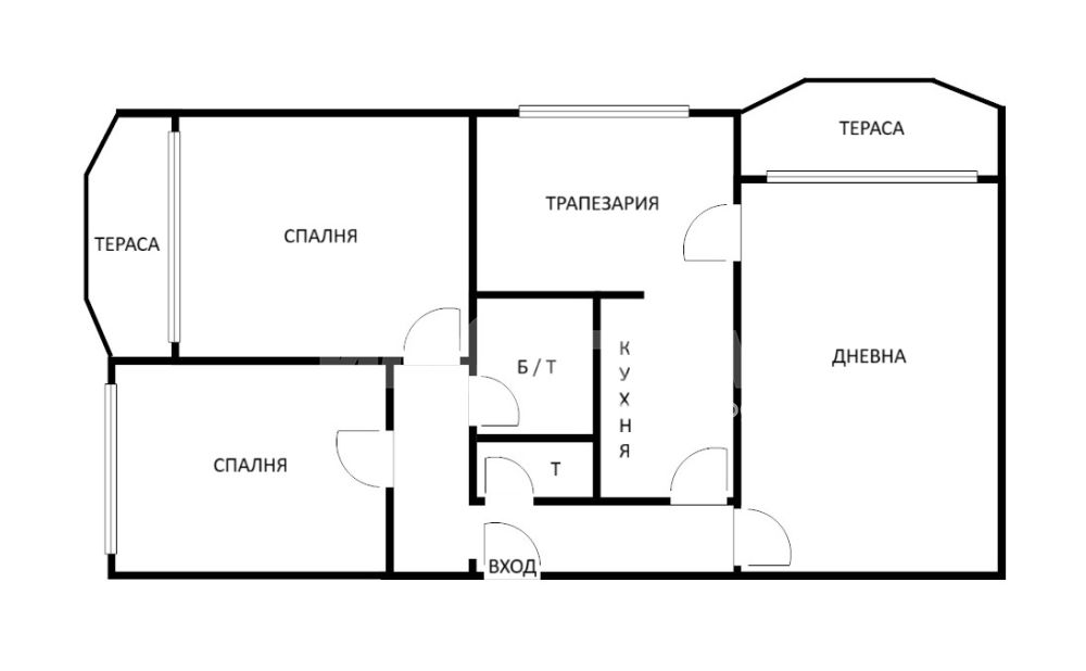
Предлагаме за продажба апартамент с площ 83 кв.м, в кв. "Младост", етаж 7 от 15, саниран блок. Състои се от коридор, две мокри помещения, две спални с обща тераса, кухненски бокс, отделно хол с тераса. Завършен е до ключ. Има възможност да се обособи трета спалня. Блокът разполага с ТЕЦ и топла вода.

Сграда тип ЕПК 

кв. "Младост", в района на ледената пързалка, училище Гео Милев 

Обади се СЕГА и цитирай този код 669019.


Оферта от партньор на Имотека

Снежина Джангазова
Консултант недвижими имоти
pin Пиши във Viber

Сходни оферти

Често задавани въпроси

Коя цена е определяща при покупка на имот?

Какво представлява данъчната оценка?

Към кого да се обърнем за данъчна оценка на имот?

Как протича сделка за покупка на имот с ипотечен кредит?

Как да изберем брокер при продажба на апартамент?