41

Тристаен апартамент за продажба, Варна, ID 670841

78 кв.м.
Възраждане 2
Напълно обзаведен
158 500 EUR
2 032 €/кв.м.

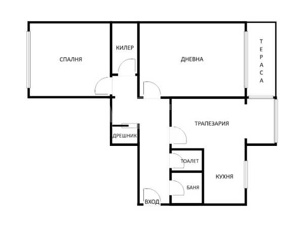
Продава се апартамент до училище "Никола Вапцаров", в карето на блок 27-30 във Възраждане 2.  Има следното разпределение: коридор с вграден гардероб с дълбока ниша Г-кухня с усвоена тераса пред него Хол с остъклена тераса широка 1,50 м Спалня Баня  Тоалетна Килер Имотът е освежен за новите собственици с боядисани стени /без тавани/ и почистен. Продава се обзаведен както е на снимките. В спалнята и хола има естествен паркет положен преди около 12 години, кухнята и коридора са на теракот. Има два инверторни климатика и подово отопление в кухнята /като избор за отопление през студените месеци/. Изложението на апартамента е изток  (спалня) и запад на другите две стаи.  И от двете страни има простор. Чиста площ на имота 77,55 кв.м, избено помещение 5,12 кв.м. Има свободна зона за паркиране до блока.

Панелен блок от 1987 година. Блокът е саниран, с подменена дограма на входа, сменени вертикални щрангове на ВиК тръби на целия вход. Етажната собственост се управлява от външен домоуправител "Триус" с отлична събираемост и своевременно отстраняване на текущи недостатъци. Входа е шпаклован и боядисан преди 2 месеца.

Местоположението на имота е сред най-добрата локация на кварталите Възраждане. Намира се непосредствено до училище "Никола Вапцаров" и ДГ "Крилатко", не далеч е и училище "Гео Милев". На две минути са хипермаркетите Кауфланд и Лидъл. Клиника "Нова" е в близост, недалеч е и Медицински център "Марешки".  

Предимствата на имота са: удобна локация за млади семейства добро състояние на имота, което позволява незабавно нанасяне  функционално разпределение на имота

Обади се СЕГА и цитирай този код 670841.


Оферта от партньор на Имотека

Иван Минчев
ШАМПИОН ПО ОБОРОТ - БРОНЗОВ КОНСУЛТАНТ 2016Г.
ШАМПИОН ПО ОБОРОТ – ЗЛАТЕН КОНСУЛТАНТ 2019Г.
ШАМПИОН ПО ОБОРОТ – БРОНЗОВ КОНСУЛТАНТ 2020Г.
Иван Минчев
Консултант недвижими имоти
pin Пиши във Viber

Сходни оферти

Често задавани въпроси

Как протича сделка за покупка на имот с ипотечен кредит?

Коя цена е определяща при покупка на имот?

Към кого да се обърнем за данъчна оценка на имот?

Какво можем да очакваме от пазара на имоти през 2025 г.?

Колко струва една оценка на имот?